Maison à vendre à LONGEVILLE-LES-SAINT-AVOLD de 178m²155 000 €
Réf 1562412
Aperçu de cette maison à vendre de 9 pièces et 178 m²
Maison
178m²
9
5
2
2
460m²
1
Bois individuel
1940
Le point fort de cette maison
LONGEVILLE LES SAINT AVOLD
Description de cette maison à vendre de 9 pièces et 178 m²
GRANDE MAISON FAMILIALE 178 m² – 5 CHAMBRES – DPE C – LONGEVILLE-LÈS-SAINT-AVOLD – 155 000 €
Je vous propose de découvrir sur la jolie commune de LONGEVILLE LES SAINT AVOLD proche de toutes les commodités , école maternelle, école primaire , collège
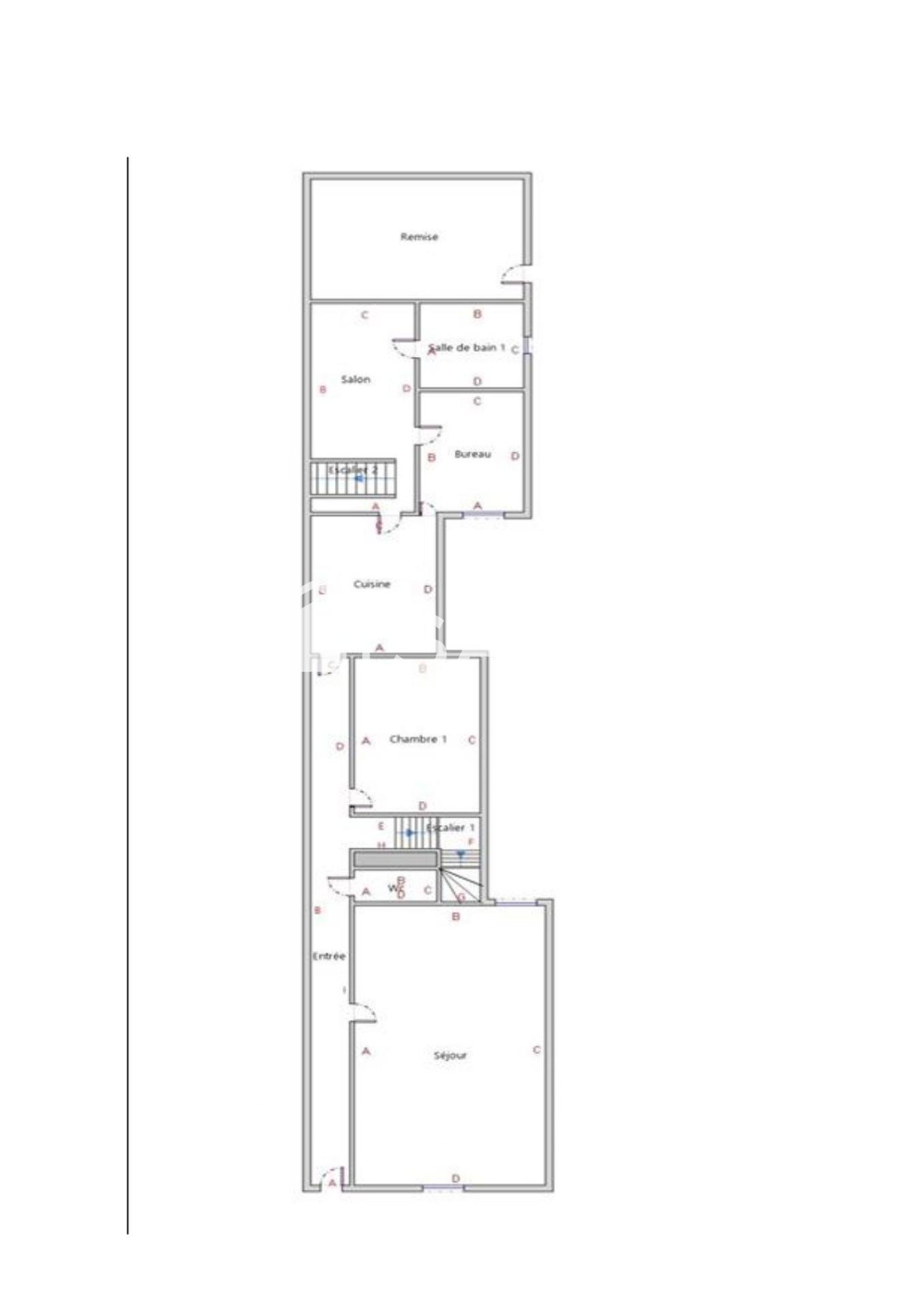
Spacieuse maison familiale mitoyenne de 178 m², édifiée sur un terrain de 460 m², elle se compose de 9 pièces 5 chambres, et 2 salles de bain,
Parfaitement adaptée à une famille ou à un projet avec espaces séparés.
Au rez-de-chaussée, un couloir dessert un vaste séjour, une cuisine , un bureau, un cellier, un second salon, une salle de bain dont la douche à l'italienne es t neuve ,et un WC séparé.
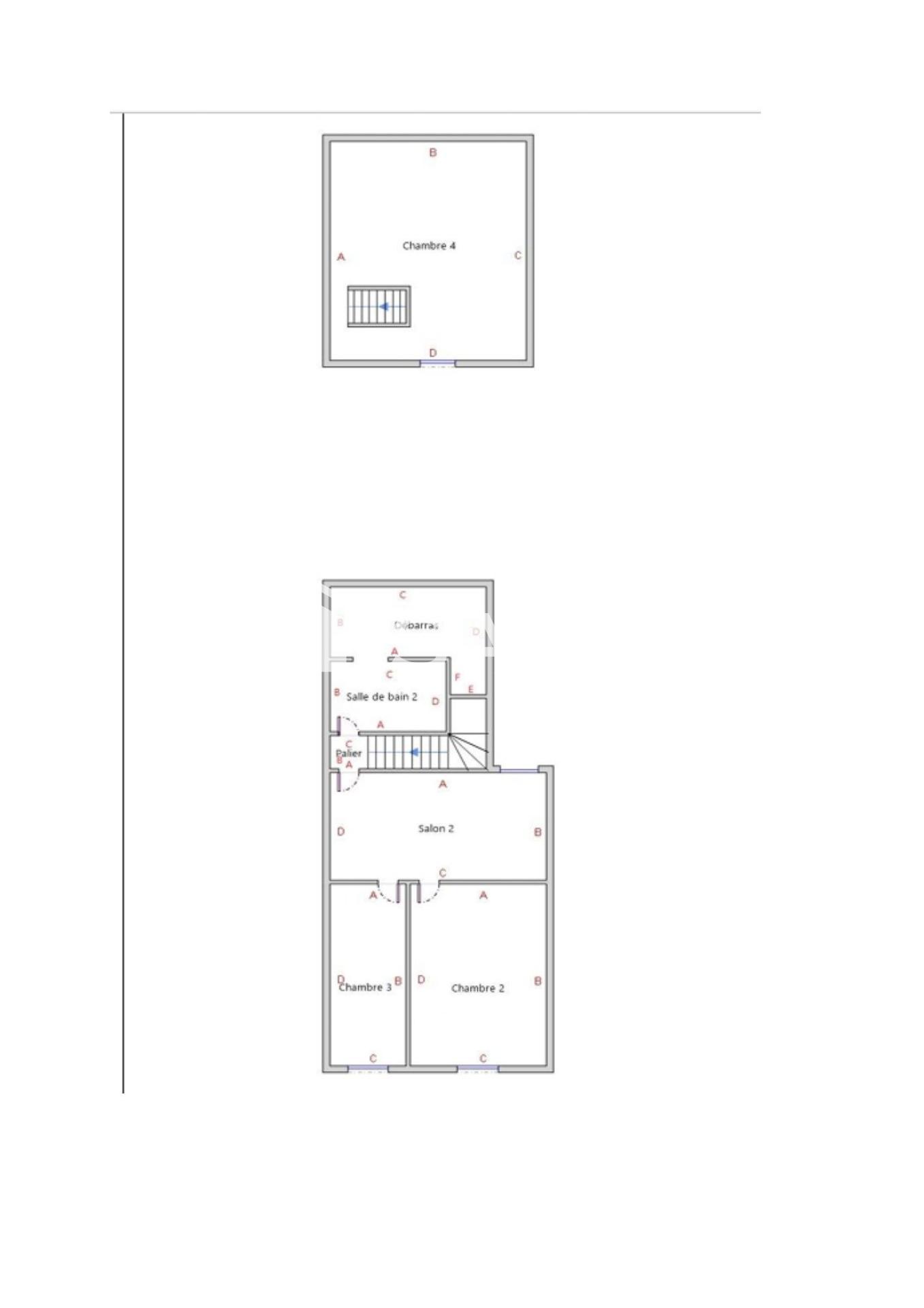
À l’étage : trois chambres, une deuxième salle de bain, un débarras (possibilité dressing).
Coté technique :
- 3 poêles à pellets,
- Double vitrage à isolation renforcée,
- Electricité remise à neuf
À l’extérieur, une dépendance, un jardin avec terrasse.
• ? Pas de garage, mais stationnement facile à proximité ?
DPE : C (très bon classement )
Prix : 155 000 € honoraires inclus
Contactez moi pour plus d’infos ou une visite !
Les informations sur les risques auxquels ce bien est exposé sont disponibles sur le site Géorisques : www.georisques.gouv.fr
Prix de vente : 155 000 €
Honoraires charge vendeur
Contactez votre conseiller SAFTI : Fabienne RIZZO, Tél. : 06 03 95 50 88 , E-mail : fabienne.rizzo@safti.fr - EI - Agent commercial immatriculé au RSAC de Metz sous le numéro 931677157
Spacieuse maison familiale mitoyenne de 178 m², édifiée sur un terrain de 460 m², elle se compose de 9 pièces 5 chambres, et 2 salles de bain,
Parfaitement adaptée à une famille ou à un projet avec espaces séparés.
Au rez-de-chaussée, un couloir dessert un vaste séjour, une cuisine , un bureau, un cellier, un second salon, une salle de bain dont la douche à l'italienne es t neuve ,et un WC séparé.
À l’étage : trois chambres, une deuxième salle de bain, un débarras (possibilité dressing).
Coté technique :
- 3 poêles à pellets,
- Double vitrage à isolation renforcée,
- Electricité remise à neuf
À l’extérieur, une dépendance, un jardin avec terrasse.
• ? Pas de garage, mais stationnement facile à proximité ?
DPE : C (très bon classement )
Prix : 155 000 € honoraires inclus
Contactez moi pour plus d’infos ou une visite !
Les informations sur les risques auxquels ce bien est exposé sont disponibles sur le site Géorisques : www.georisques.gouv.fr
Prix de vente : 155 000 €
Honoraires charge vendeur
Contactez votre conseiller SAFTI : Fabienne RIZZO, Tél. : 06 03 95 50 88 , E-mail : fabienne.rizzo@safti.fr - EI - Agent commercial immatriculé au RSAC de Metz sous le numéro 931677157
Informations additionnelles
Bilan énergétique
CLASSE ÉNERGIE ET CLASSE CLIMATm².anCi
Montant estimé des dépenses annuelles d'énergie pour un usage standard : entre 1300€ et 1800€ par an sur l'année 2021.
Ce bien vous est proposé par :

Fabienne Rizzo
Faulquemont (57380)
16 biens en portefeuille
Je souhaite être recontacté

















