Maison à vendre à VALMONT de 90m²139 000 €
Réf 1583609
Aperçu de cette maison à vendre de 5 pièces et 90 m²
Maison
90m²
5
3
1
2
664m²
3
Fuel individuel
1978
Le point fort de cette maison
Commodités, plain-pied surélevé
Description de cette maison à vendre de 5 pièces et 90 m²
Maison au calme proche de tout
Dans une rue à circulation limitée, à proximité immédiate de toutes les commodités et de la gare SNCF (1km), votre conseillère Safti Corinne ROMMING vous propose, en exclusivité, cette maison de construction CRISTINI d’environ 90 m², édifiée sur un terrain plat et clôturé de plus de 6 ares.
Vous apprécierez la distribution fonctionnelle de la maison, offrant sur un même niveau :
• une belle entrée,
• un salon-séjour lumineux, agrémenté d’une cheminée avec insert,
• une cuisine aménagée attenante
• trois chambres,
• une salle de bains,
• ainsi que des WC séparés.
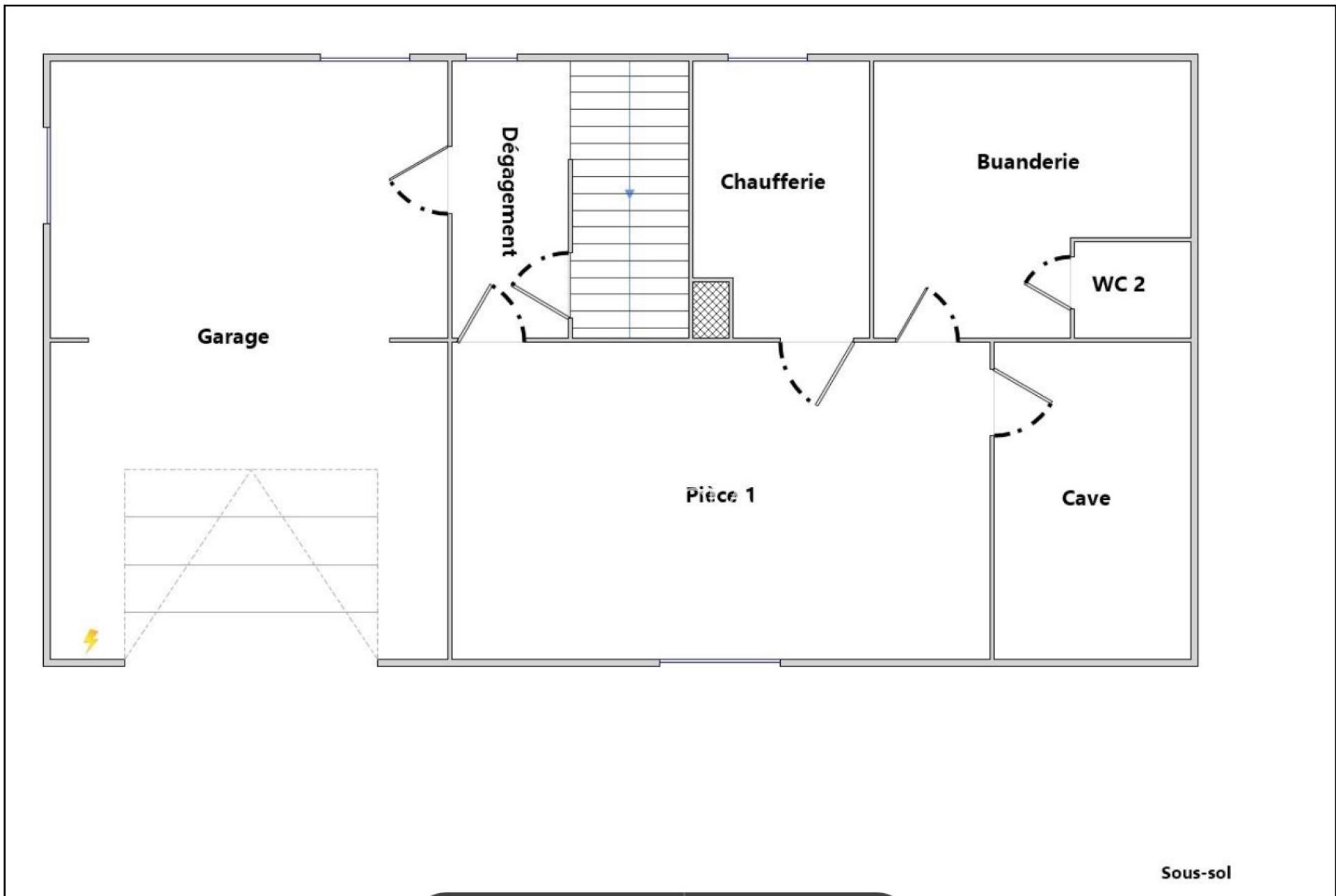
Le sous-sol complet propose de nombreux espaces complémentaires : buanderie, chaufferie, cave, salle de loisirs, ainsi qu’un grand garage.
Les fenêtres sont récentes (fin 2023), en PVC double vitrage, équipées de volets motorisés SOMFY.
Après quelques travaux de rénovation et modernisation, cette maison révélera tout son potentiel et conviendra parfaitement à une vie au calme, tout en restant proche de tout.
À visiter sans tarder !
Les informations sur les risques auxquels ce bien est exposé sont disponibles sur le site Géorisques : www.georisques.gouv.fr
Prix de vente honoraires d'agence inclus : 139 000 €
Prix de vente hors honoraires d'agence : 130 000 €
Honoraires charge acquéreur : 9 000 € soit 6,92 % TTC de la valeur du bien hors honoraires
Contactez votre conseiller SAFTI : Corinne ROMMING, Tél. : 0642280902, E-mail : corinne.romming@safti.fr - EI - Agent commercial immatriculé au RSAC de SARREGUEMINES sous le numéro 528879109
Vous apprécierez la distribution fonctionnelle de la maison, offrant sur un même niveau :
• une belle entrée,
• un salon-séjour lumineux, agrémenté d’une cheminée avec insert,
• une cuisine aménagée attenante
• trois chambres,
• une salle de bains,
• ainsi que des WC séparés.
Le sous-sol complet propose de nombreux espaces complémentaires : buanderie, chaufferie, cave, salle de loisirs, ainsi qu’un grand garage.
Les fenêtres sont récentes (fin 2023), en PVC double vitrage, équipées de volets motorisés SOMFY.
Après quelques travaux de rénovation et modernisation, cette maison révélera tout son potentiel et conviendra parfaitement à une vie au calme, tout en restant proche de tout.
À visiter sans tarder !
Les informations sur les risques auxquels ce bien est exposé sont disponibles sur le site Géorisques : www.georisques.gouv.fr
Prix de vente honoraires d'agence inclus : 139 000 €
Prix de vente hors honoraires d'agence : 130 000 €
Honoraires charge acquéreur : 9 000 € soit 6,92 % TTC de la valeur du bien hors honoraires
Contactez votre conseiller SAFTI : Corinne ROMMING, Tél. : 0642280902, E-mail : corinne.romming@safti.fr - EI - Agent commercial immatriculé au RSAC de SARREGUEMINES sous le numéro 528879109
Informations additionnelles
Bilan énergétique
CLASSE ÉNERGIE ET CLASSE CLIMATm².anFi
Montant estimé des dépenses annuelles d'énergie pour un usage standard : entre 3660€ et 5030€ par an sur l'année 2021.
Ce bien vous est proposé par :

Corinne Romming
Valmont (57730)
21 biens en portefeuille
Je souhaite être recontacté

















