Maison à vendre à Beauchalot de 165m²449 000 €
Réf 1580655
Aperçu de cette maison à vendre de 6 pièces et 165 m²
Maison
165m²
6
4
2
2
1 749m²
2
Individuel
1700
Le point fort de cette maison
Pas de travaux à prévoir, proche commerces et A64
Description de cette maison à vendre de 6 pièces et 165 m²
Ancien presbytère rénové de 165 m², 4 chambres, 1749 m² de terrain.
Située à Beauchalot (31360), cet ancien presbytère datant du XVII offre un cadre de vie calme et authentique. Son exposition Nord-Est garantit une luminosité optimale tout au long de la journée. La maison est équipée d'un chauffage par aérothermie et d'un poêle à bois, d'un ballon thermodynamique de 200L, garantissant une excellente performance énergétique.
Cette maison à été rénovée avec gout et respect de ses origines, pas de travaux à prévoir.
À l'extérieur, cette propriété se distingue par sa belle piscine enterrée de 8x4 de 2022, chauffée par une pompe à chaleur, idéale pour se détendre en toute intimité et profiter de la terrasse couverte attenante. Le grand jardin entourant la maison offre un espace verdoyant parfait pour profiter des journées ensoleillées, sans vis à vis et un terrain de pétanque pour des moments entre amis .
De plus, deux places de parking extérieures et un atelier de 40 m² au sol vous permettra de bricoler à votre aise, l'étage de 40 m² vous laisse le loisir de l'aménager à votre convenance.
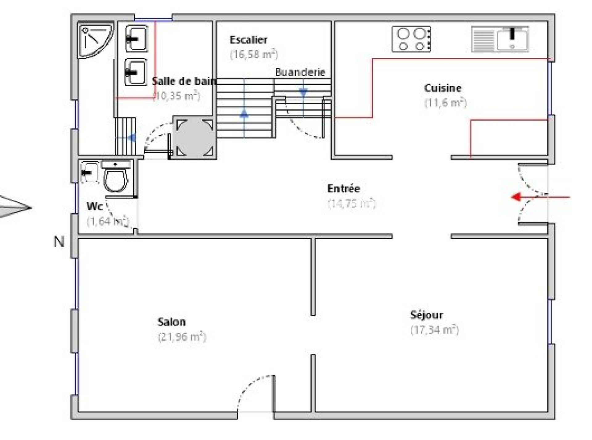
À l'intérieur, cette maison de 165 m² rénovée en 2020 comprend en RDC, une entrée avec son carrelage d'époque, une cuisine équipée, un séjour avec un poêle à bois, un salon, une salle d'eau avec sa douche italienne et un WC. A l'étage, 4 chambres dont une avec sa salle d'eau, 1 WC, et les combles isolés et aménageables. Les menuiseries en double vitrage assurent une isolation thermique et phonique efficace, tandis que les sols en carrelage et en travertin ajoute charme et confort. Avec son cachet préservé et ses équipements modernes, cette propriété est un véritable cocon familial.
Taxe foncière 2025, 474 €.
Proche des écoles, du lycée, du collège, des commerces et de l'A64 elle ravira les familles en quête de tranquillité.
Les informations sur les risques auxquels ce bien est exposé sont disponibles sur le site Géorisques : www.georisques.gouv.fr
Prix de vente : 449 000 €
Honoraires charge vendeur
Contactez votre conseiller SAFTI : Nadia LACROIX, Tél. : 0610016576, E-mail : nadia.lacroix@safti.fr - EI - Agent commercial immatriculé au RSAC de Toulouse sous le numéro 328974902
Cette maison à été rénovée avec gout et respect de ses origines, pas de travaux à prévoir.
À l'extérieur, cette propriété se distingue par sa belle piscine enterrée de 8x4 de 2022, chauffée par une pompe à chaleur, idéale pour se détendre en toute intimité et profiter de la terrasse couverte attenante. Le grand jardin entourant la maison offre un espace verdoyant parfait pour profiter des journées ensoleillées, sans vis à vis et un terrain de pétanque pour des moments entre amis .
De plus, deux places de parking extérieures et un atelier de 40 m² au sol vous permettra de bricoler à votre aise, l'étage de 40 m² vous laisse le loisir de l'aménager à votre convenance.
À l'intérieur, cette maison de 165 m² rénovée en 2020 comprend en RDC, une entrée avec son carrelage d'époque, une cuisine équipée, un séjour avec un poêle à bois, un salon, une salle d'eau avec sa douche italienne et un WC. A l'étage, 4 chambres dont une avec sa salle d'eau, 1 WC, et les combles isolés et aménageables. Les menuiseries en double vitrage assurent une isolation thermique et phonique efficace, tandis que les sols en carrelage et en travertin ajoute charme et confort. Avec son cachet préservé et ses équipements modernes, cette propriété est un véritable cocon familial.
Taxe foncière 2025, 474 €.
Proche des écoles, du lycée, du collège, des commerces et de l'A64 elle ravira les familles en quête de tranquillité.
Les informations sur les risques auxquels ce bien est exposé sont disponibles sur le site Géorisques : www.georisques.gouv.fr
Prix de vente : 449 000 €
Honoraires charge vendeur
Contactez votre conseiller SAFTI : Nadia LACROIX, Tél. : 0610016576, E-mail : nadia.lacroix@safti.fr - EI - Agent commercial immatriculé au RSAC de Toulouse sous le numéro 328974902
Informations additionnelles
Bilan énergétique
CLASSE ÉNERGIE ET CLASSE CLIMATm².anBi
Montant estimé des dépenses annuelles d'énergie pour un usage standard : entre 1050€ et 1470€ par an sur l'année 2021.
Ce bien vous est proposé par

Nadia Lacroix
Montsaunes (31260)
29 biens en portefeuille
Je souhaite être recontacté








