Fonds De Commerce à vendre à PARIS 18E ARRONDISSEMENT de 76m²385 000 € HT
Réf 1605224
Aperçu de ce commerce à vendre de 1 pièce et 76 m²
Fonds De Commerce
76m²
RDC
1
Le point fort de ce commerce
Beau RESTAURANT à la belle clientèle CSP+, au coeur du quartier MONTMARTRE Grandes Carrières
Description de ce commerce à vendre de 1 pièce et 76 m²
MONTMARTRE - EXTRACTION - VERANDA - CLIENTELE CSP+
Pour cause de retraite, cède un beau RESTAURANT à la belle clientèle CSP+, au coeur du quartier MONTMARTRE Grandes Carrières
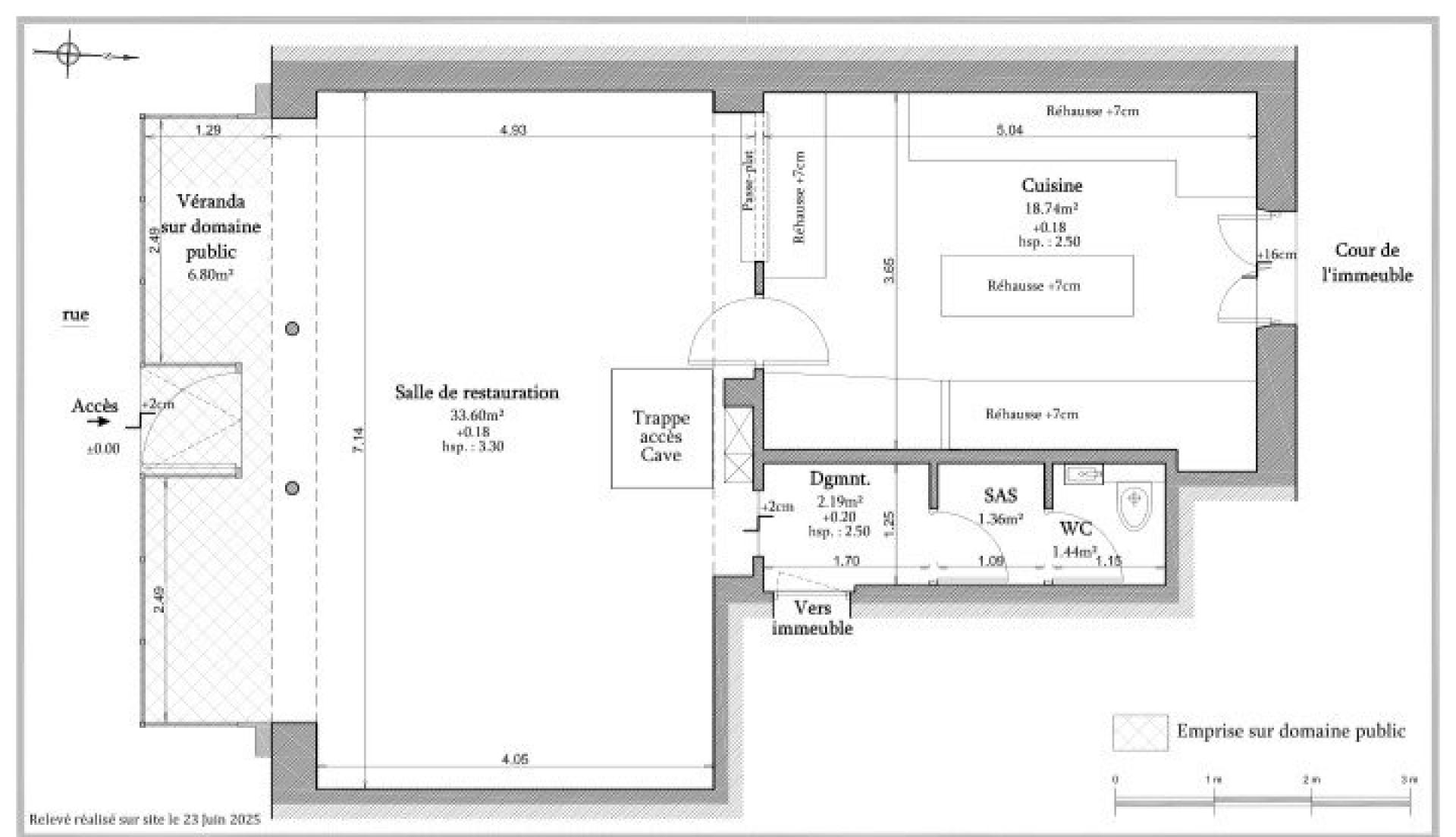
Surface totale : 76 m²
Salle de 40 m² et 40 couverts
Cuisine de 18 m² toute équipée
EXTRACTION 400 vers le toit
Réserve en sous-sol d'environ 30 m²
CA 2024 : 624 k€
CA 2025 : 510 k€
Fermeture : deux jours par semaine.
Loyer : 2565 € /mois
Bail renouvelé en 2026
Charges : 200 € /mois
Taxe foncière : 1200 € /an
Droit de terrasse : 1700 € /an
Les informations sur les risques auxquels ce bien est exposé sont disponibles sur le site Géorisques : www.georisques.gouv.fr
Prix de vente honoraires d’agence inclus : 385 000 € HT + 6 160 € TVA, soit 391 160 € TTC
Prix de vente hors honoraires d’agence : 354 200 € HT + 0 € TVA, soit 354 200 € TTC
Honoraires d'agence : 30 800 € HT + 6 160 € TVA, soit 36 960 € TTC (10.43 % TTC du prix de vente hors honoraires d'agence)
Honoraires charge acquéreur
Contactez votre conseiller SAFTI : Lamiyae EL GHAOUTI, Tél. : 0669640108, E-mail : lamiyae.elghaouti@safti.fr - EI - Agent commercial immatriculé au RSAC de Créteil sous le numéro 531188555
Surface totale : 76 m²
Salle de 40 m² et 40 couverts
Cuisine de 18 m² toute équipée
EXTRACTION 400 vers le toit
Réserve en sous-sol d'environ 30 m²
CA 2024 : 624 k€
CA 2025 : 510 k€
Fermeture : deux jours par semaine.
Loyer : 2565 € /mois
Bail renouvelé en 2026
Charges : 200 € /mois
Taxe foncière : 1200 € /an
Droit de terrasse : 1700 € /an
Les informations sur les risques auxquels ce bien est exposé sont disponibles sur le site Géorisques : www.georisques.gouv.fr
Prix de vente honoraires d’agence inclus : 385 000 € HT + 6 160 € TVA, soit 391 160 € TTC
Prix de vente hors honoraires d’agence : 354 200 € HT + 0 € TVA, soit 354 200 € TTC
Honoraires d'agence : 30 800 € HT + 6 160 € TVA, soit 36 960 € TTC (10.43 % TTC du prix de vente hors honoraires d'agence)
Honoraires charge acquéreur
Contactez votre conseiller SAFTI : Lamiyae EL GHAOUTI, Tél. : 0669640108, E-mail : lamiyae.elghaouti@safti.fr - EI - Agent commercial immatriculé au RSAC de Créteil sous le numéro 531188555
Informations additionnelles
Bilan énergétique
Non obligatoireDiagnostic de Performance Energétique
Non obligatoireGaz à effet de serre
Ce bien vous est proposé par :

Lamiyae El Ghaouti
Fontenay-Sous-Bois (94120)
86 biens en portefeuille
Je souhaite être recontacté
Un de vos proches a un projet immobilier ?
Achat ou vente, transmettez-moi l’info via l’appli SAFTI Connect et gagnez 875€ en moyenne.

















