Terrain à vendre à MEYRALS de 10039m²26 000 €
Meyrals - 24220
Réf 1578704
Aperçu de ce terrain à vendre de 10039 m²
Type de logement :
Terrain
Terrain
Surface habitable :
10 039m²
10 039m²
Terrain :
10 039m²
10 039m²
Description de ce terrain à vendre de 10039 m²
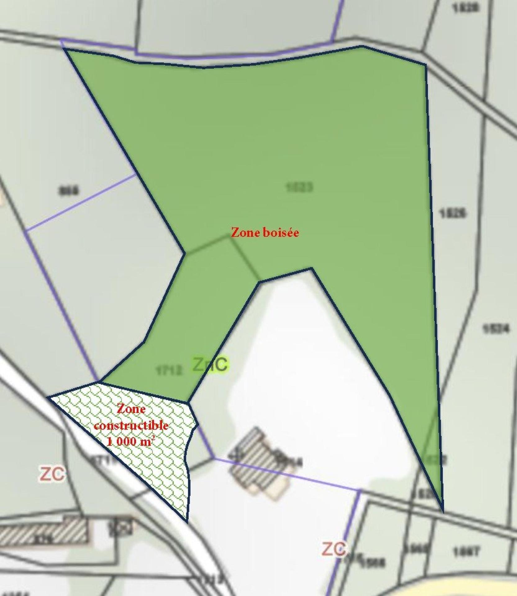
Tarrain de 10 039 m² dont 1 000m² environ de constructible
Superbe terrain boisé de 10 039 m² dont 1000 m² constructible environ à l'écard de route passante et autre nuisance
A voir absolument
Les informations sur les risques auxquels ce bien est exposé sont disponibles sur le site Géorisques : www.georisques.gouv.fr
Prix de vente : 26 000 €
Honoraires charge vendeur
Contactez votre conseiller SAFTI : Michel DUPONT, Tél. : 06 61 51 17 83, E-mail : michel.dupont@safti.fr - EI - Agent commercial immatriculé au RSAC de BERGERAC sous le numéro 333 474 179
Superbe terrain boisé de 10 039 m² dont 1000 m² constructible environ à l'écard de route passante et autre nuisance
A voir absolument
Les informations sur les risques auxquels ce bien est exposé sont disponibles sur le site Géorisques : www.georisques.gouv.fr
Prix de vente : 26 000 €
Honoraires charge vendeur
Contactez votre conseiller SAFTI : Michel DUPONT, Tél. : 06 61 51 17 83, E-mail : michel.dupont@safti.fr - EI - Agent commercial immatriculé au RSAC de BERGERAC sous le numéro 333 474 179
A voir absolument
Les informations sur les risques auxquels ce bien est exposé sont disponibles sur le site Géorisques : www.georisques.gouv.fr
Prix de vente : 26 000 €
Honoraires charge vendeur
Contactez votre conseiller SAFTI : Michel DUPONT, Tél. : 06 61 51 17 83, E-mail : michel.dupont@safti.fr - EI - Agent commercial immatriculé au RSAC de BERGERAC sous le numéro 333 474 179
Ce bien vous est proposé par

Michel Dupont
Le Bugue (24260)
57 biens en portefeuille
Je souhaite être recontacté










