Terrain à vendre à BRIOU de 0m²34 000 €
Réf 1542221
Aperçu de ce terrain à vendre de 0 m²
Terrain
Description de ce terrain à vendre de 0 m²
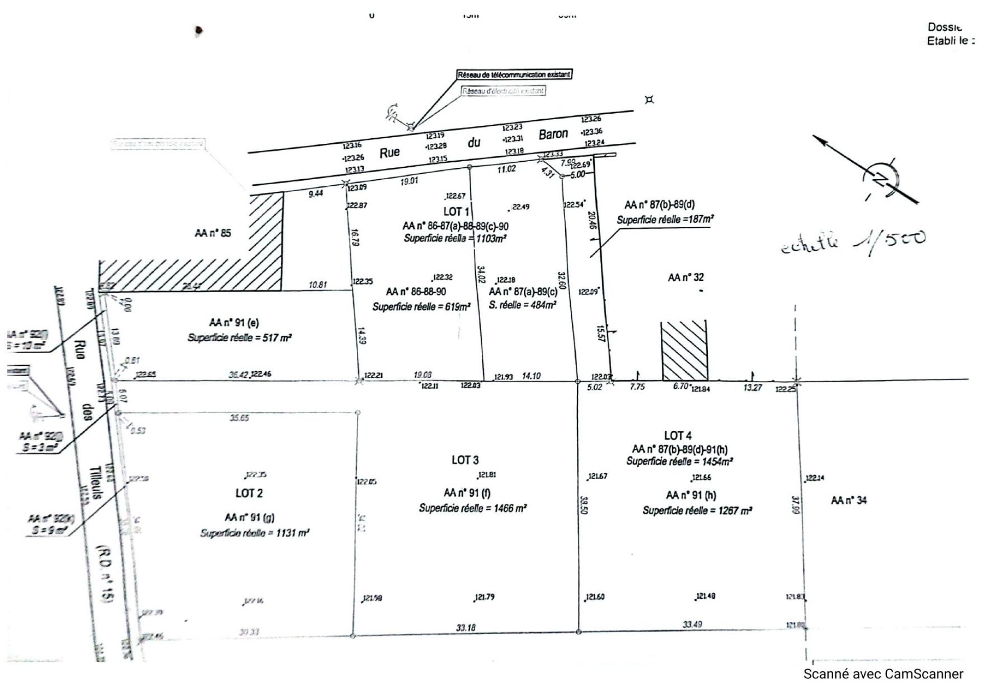
Terrain à bâtir de 1454m2
Terrain à bâtir de 1454m2 borné et non viabilisé de 1454m2 lot4 sur le plan, en retrait de la route.
Les informations sur les risques auxquels ce bien est exposé sont disponibles sur le site Géorisques : www.georisques.gouv.fr
Prix de vente : 34 000 €
Honoraires charge vendeur
Contactez votre conseiller SAFTI : Fabien DENIS, Tél. : 06 07 61 04 95, E-mail : fabien.denis@safti.fr - EI - Agent commercial immatriculé au RSAC de BLOIS sous le numéro 483 295 259
Les informations sur les risques auxquels ce bien est exposé sont disponibles sur le site Géorisques : www.georisques.gouv.fr
Prix de vente : 34 000 €
Honoraires charge vendeur
Contactez votre conseiller SAFTI : Fabien DENIS, Tél. : 06 07 61 04 95, E-mail : fabien.denis@safti.fr - EI - Agent commercial immatriculé au RSAC de BLOIS sous le numéro 483 295 259
Ce bien vous est proposé par :

Fabien Denis
Mer (41500)
33 biens en portefeuille
Je souhaite être recontacté
Un de vos proches a un projet immobilier ?
Achat ou vente, transmettez-moi l’info via l’appli SAFTI Connect et gagnez 875€ en moyenne.











