Terrain à vendre à BRIOU de 1466m²34 000 €
Réf 1542211
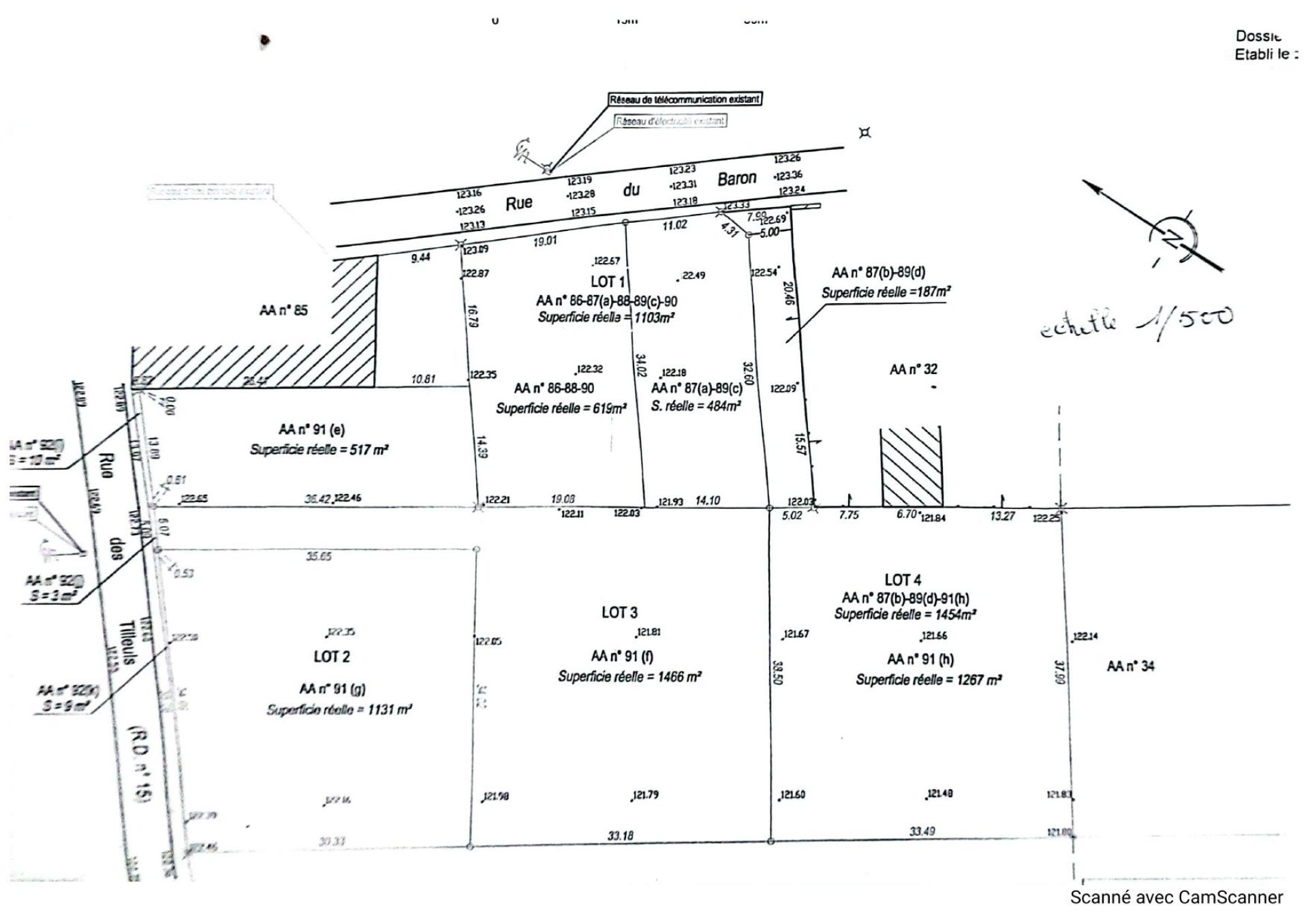
Aperçu de ce terrain à vendre de 1466 m²
Terrain
1 466m²
1 466m²
Description de ce terrain à vendre de 1466 m²
Terrain à bâtir 1466m2
Terrain à bâtir borné et non viabilisé de 1466m2, en retrait du bord de route, lot3 du plan.
Les informations sur les risques auxquels ce bien est exposé sont disponibles sur le site Géorisques : www.georisques.gouv.fr
Prix de vente : 34 000 €
Honoraires charge vendeur
Contactez votre conseiller SAFTI : Fabien DENIS, Tél. : 06 07 61 04 95, E-mail : fabien.denis@safti.fr - EI - Agent commercial immatriculé au RSAC de BLOIS sous le numéro 483 295 259
Les informations sur les risques auxquels ce bien est exposé sont disponibles sur le site Géorisques : www.georisques.gouv.fr
Prix de vente : 34 000 €
Honoraires charge vendeur
Contactez votre conseiller SAFTI : Fabien DENIS, Tél. : 06 07 61 04 95, E-mail : fabien.denis@safti.fr - EI - Agent commercial immatriculé au RSAC de BLOIS sous le numéro 483 295 259
Ce bien vous est proposé par :

Fabien Denis
Mer (41500)
33 biens en portefeuille
Je souhaite être recontacté
Un de vos proches a un projet immobilier ?
Achat ou vente, transmettez-moi l’info via l’appli SAFTI Connect et gagnez 875€ en moyenne.











