Maison à vendre à VIVY de 156m²199 000 €
Réf 1567963
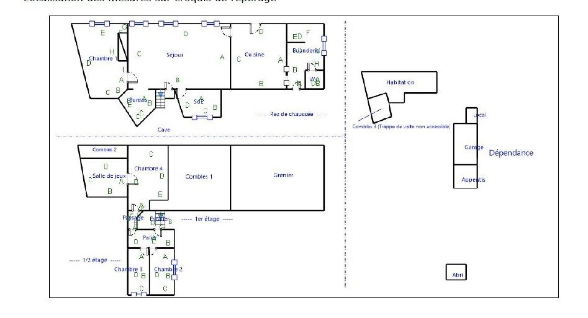
Aperçu de cette maison à vendre de 6 pièces et 156 m²
Maison
156m²
6
4
2
2
1 830m²
3
Individuel
1948
Le point fort de cette maison
sans travaux, proche transport en commun, belle pièce de vie, cheminée
Description de cette maison à vendre de 6 pièces et 156 m²
maison tuffeau rénovée
Charme, Espace et Confort : La vie de famille idéale près de Vivy
Découvrez cette magnifique maison de 156 m², une perle rare alliant le cachet de l’ancien et une rénovation contemporaine de qualité. Idéalement située entre Vivy (49680) et Longué-Jumelles (49160), elle offre un cadre de vie verdoyant et ultra-fonctionnel pour votre famille.
? Les points forts de la propriété :
Un intérieur soigné : Une pièce de vie chaleureuse avec cheminée, et 4 grandes chambres où chacun trouvera son intimité.
Prestations complètes : 2 salles de bain, une buanderie pratique et un système de chauffage performant pour un confort thermique optimal.
Un jardin d'exception : Un parc de 1 830 m² clos, parfait pour vos projets de potager, parc animalier, ou les jeux des enfants.
Le plus "potentiel" : Deux garages, une terrasse ensoleillée et des dépendances offrant de multiples possibilités d'aménagement (atelier, bureau, ....).
? un prix imbattable ;
Bien que située à proximité d'un axe passant, cette maison a été pensée comme un sanctuaire : l'installation de menuiseries acoustiques de qualité vous garantit une sérénité totale à l'intérieur. Cette particularité géographique est une réelle opportunité, vous permettant d'acquérir ce bien à un prix particulièrement compétitif.
Ne laissez pas passer cette opportunité unique.
Les informations sur les risques auxquels ce bien est exposé sont disponibles sur le site Géorisques : www.georisques.gouv.fr
Prix de vente : 199 000 €
Honoraires charge vendeur
Contactez votre conseiller SAFTI : Tony GUÉRIN, Tél. : 0614307386, E-mail : tony.guerin@safti.fr - EI - Agent commercial immatriculé au RSAC de Angers sous le numéro 824 509 673
Découvrez cette magnifique maison de 156 m², une perle rare alliant le cachet de l’ancien et une rénovation contemporaine de qualité. Idéalement située entre Vivy (49680) et Longué-Jumelles (49160), elle offre un cadre de vie verdoyant et ultra-fonctionnel pour votre famille.
? Les points forts de la propriété :
Un intérieur soigné : Une pièce de vie chaleureuse avec cheminée, et 4 grandes chambres où chacun trouvera son intimité.
Prestations complètes : 2 salles de bain, une buanderie pratique et un système de chauffage performant pour un confort thermique optimal.
Un jardin d'exception : Un parc de 1 830 m² clos, parfait pour vos projets de potager, parc animalier, ou les jeux des enfants.
Le plus "potentiel" : Deux garages, une terrasse ensoleillée et des dépendances offrant de multiples possibilités d'aménagement (atelier, bureau, ....).
? un prix imbattable ;
Bien que située à proximité d'un axe passant, cette maison a été pensée comme un sanctuaire : l'installation de menuiseries acoustiques de qualité vous garantit une sérénité totale à l'intérieur. Cette particularité géographique est une réelle opportunité, vous permettant d'acquérir ce bien à un prix particulièrement compétitif.
Ne laissez pas passer cette opportunité unique.
Les informations sur les risques auxquels ce bien est exposé sont disponibles sur le site Géorisques : www.georisques.gouv.fr
Prix de vente : 199 000 €
Honoraires charge vendeur
Contactez votre conseiller SAFTI : Tony GUÉRIN, Tél. : 0614307386, E-mail : tony.guerin@safti.fr - EI - Agent commercial immatriculé au RSAC de Angers sous le numéro 824 509 673
Informations additionnelles
Bilan énergétique
CLASSE ÉNERGIE ET CLASSE CLIMATm².anCi
Montant estimé des dépenses annuelles d'énergie pour un usage standard : entre 1450€ et 2020€ par an sur l'année 2021.
Ce bien vous est proposé par :

Tony Guérin
Saumur (49400)
10 biens en portefeuille
Je souhaite être recontacté
Un de vos proches a un projet immobilier ?
Achat ou vente, transmettez-moi l’info via l’appli SAFTI Connect et gagnez 875€ en moyenne.


















