Maison à vendre à LES MAGNILS-REIGNIERS de 92m²234 850 €
Réf 1609483
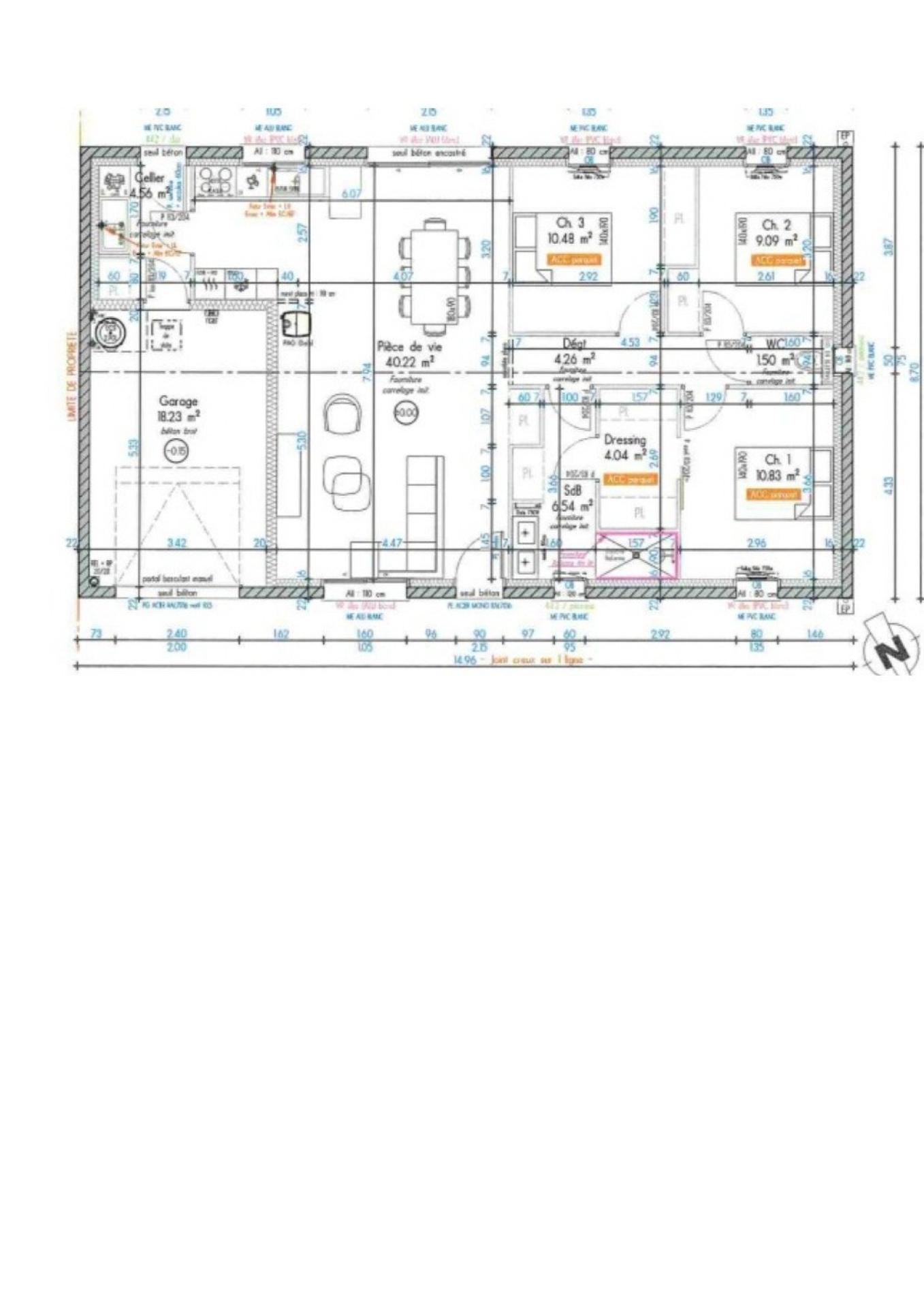
Aperçu de cette maison à vendre de 4 pièces et 92 m²
Maison
92m²
4
3
1
1
533m²
1
Électrique individuel
2026
Le point fort de cette maison
jardin clos
Description de cette maison à vendre de 4 pièces et 92 m²
Maison neuve 2026
SAFTI Isabelle TILLOL, vous présente sur la commune des Magnils Reigniers à 5 mn de la ville de Luçon.
Cette maison en cours de finition qui sera livrée en juin 2026.
Elle est composée, d'une jolie pièce de vie et sera équipée d'un poêle à pellet, d'une cuisine aménagée neuve, mais non équipée.
De 3 chambres dont une avec dressing, d'une Jolie salle d'eau avec double vasque sur meuble et douche à l'italienne, d'un WC ( suspendu)
Buanderie et garage.
Les sols et les peintures seront faits, ainsi que l’aménagement extérieur ( clôture du terrain ).
Le système de chauffage est électrique en panneau rayonnant, plus le poêle à Pellets.
Ballon thermodynamique pour l'eau chaude.
Etude thermique RE2020
Cette construction est réalisée par "LES PAVILLONS DU BOCAGE"
L'aménagement extérieur valorisé par IA n'est pas contractuel.
Les informations sur les risques auxquels ce bien est exposé sont disponibles sur le site Géorisques : www.georisques.gouv.fr
Prix de vente : 234 850 €
Honoraires charge vendeur
Contactez votre conseiller SAFTI : Isabelle TILLOL, Tél. : 06 20 85 86 35, E-mail : isabelle.tillol@safti.fr - EI - Agent commercial immatriculé au RSAC de LA ROCHE-SUR-YON sous le numéro 835 323 007
Cette maison en cours de finition qui sera livrée en juin 2026.
Elle est composée, d'une jolie pièce de vie et sera équipée d'un poêle à pellet, d'une cuisine aménagée neuve, mais non équipée.
De 3 chambres dont une avec dressing, d'une Jolie salle d'eau avec double vasque sur meuble et douche à l'italienne, d'un WC ( suspendu)
Buanderie et garage.
Les sols et les peintures seront faits, ainsi que l’aménagement extérieur ( clôture du terrain ).
Le système de chauffage est électrique en panneau rayonnant, plus le poêle à Pellets.
Ballon thermodynamique pour l'eau chaude.
Etude thermique RE2020
Cette construction est réalisée par "LES PAVILLONS DU BOCAGE"
L'aménagement extérieur valorisé par IA n'est pas contractuel.
Les informations sur les risques auxquels ce bien est exposé sont disponibles sur le site Géorisques : www.georisques.gouv.fr
Prix de vente : 234 850 €
Honoraires charge vendeur
Contactez votre conseiller SAFTI : Isabelle TILLOL, Tél. : 06 20 85 86 35, E-mail : isabelle.tillol@safti.fr - EI - Agent commercial immatriculé au RSAC de LA ROCHE-SUR-YON sous le numéro 835 323 007
Informations additionnelles
Bilan énergétique
Non obligatoireDiagnostic de Performance Energétique
Non obligatoireGaz à effet de serre
Ce bien vous est proposé par :

Isabelle Tillol
Luçon (85400)
34 biens en portefeuille
Je souhaite être recontacté
Un de vos proches a un projet immobilier ?
Achat ou vente, transmettez-moi l’info via l’appli SAFTI Connect et gagnez 875€ en moyenne.

















