Appartement à vendre à TOULON de 51m²165 000 €
Réf 1494975
Aperçu de cet appartement à vendre de 2 pièces et 51 m²
Appartement
51m²
2
1
1
1
1
Électrique individuel
2010
Le point fort de cet appartement
Prestations modernes, très bon état, immeuble sécurisé de 2010, terrasse
Description de cet appartement à vendre de 2 pièces et 51 m²
Beau T2 moderne en rez-de-jardin avec terrasse
Adresse recherchée, quartier Sainte Anne / Claret, à deux pas des commerces, du centre-ville de Toulon, de la gare et de l'hôpital, ce beau T2 avec extérieur végétalisé au calme prend place au sein d'une résidence de standing sécurisée de 2010.
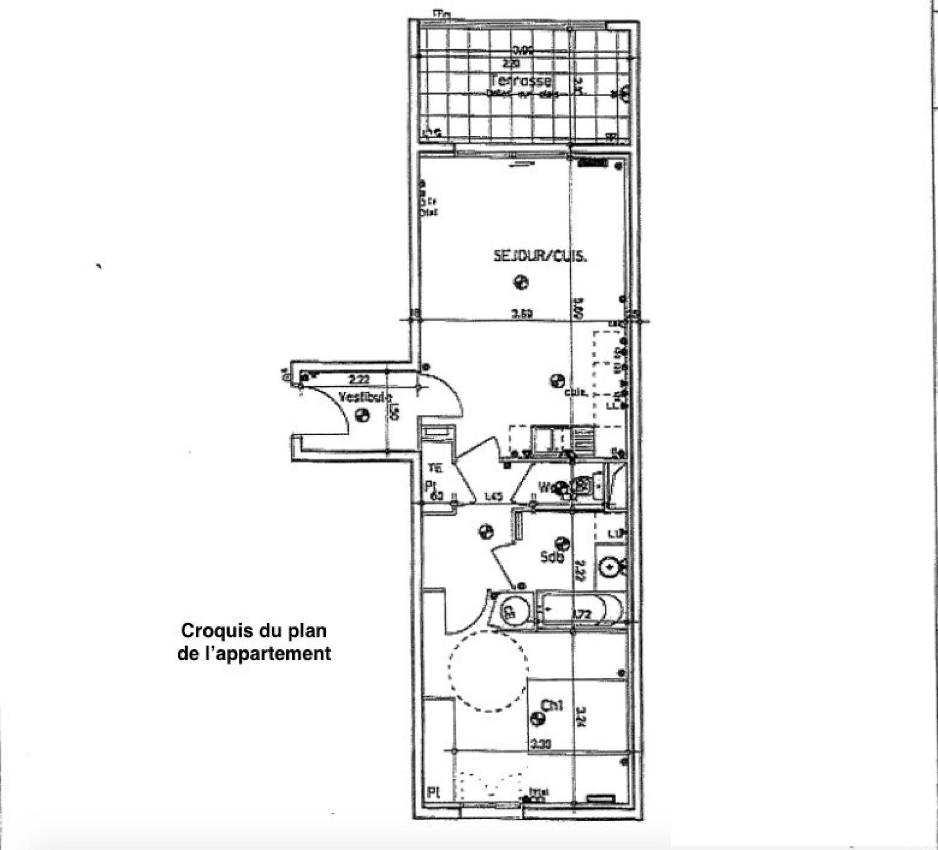
Cet appartement traversant offre 51m2 environ, répartis en 2 pièces : une entrée dessert un séjour bordé de son agréable terrasse de plus de 9m2 environ en rez-de-jardin exposée sur-ouest, et une cuisine ouverte.
S'ensuivent un wc séparé, une salle de bains, des rangements, et une chambre avec un grand placard.
Le confort est au rendez-vous : facilité d'accès, absence de travaux, prestations modernes,... Les nombreux atouts de ce type de bien recherché sauront vous séduire.
Possibilité d'acquérir un box fermé en sus dans le sous-sol sécurisé de la résidence.
Le bien comprend 1 lot, et il est situé dans une copropriété de 27 lots (les charges courantes annuelles moyennes de copropriété sont de 988 € et le syndicat des copropriétaires ne fait pas l'objet d'une procédure citée à l'article L. 721-1 du code de la construction et de l'habitation).
Les informations sur les risques auxquels ce bien est exposé sont disponibles sur le site Géorisques : www.georisques.gouv.fr
Prix de vente : 165 000 €
Honoraires charge vendeur
Contactez votre conseiller SAFTI : Charlotte LAPEYRE, Tél. : 06 84 46 94 28, E-mail : charlotte.lapeyre@safti.fr - EI - Agent commercial immatriculé au RSAC de PARIS sous le numéro 851 006 957
Cet appartement traversant offre 51m2 environ, répartis en 2 pièces : une entrée dessert un séjour bordé de son agréable terrasse de plus de 9m2 environ en rez-de-jardin exposée sur-ouest, et une cuisine ouverte.
S'ensuivent un wc séparé, une salle de bains, des rangements, et une chambre avec un grand placard.
Le confort est au rendez-vous : facilité d'accès, absence de travaux, prestations modernes,... Les nombreux atouts de ce type de bien recherché sauront vous séduire.
Possibilité d'acquérir un box fermé en sus dans le sous-sol sécurisé de la résidence.
Le bien comprend 1 lot, et il est situé dans une copropriété de 27 lots (les charges courantes annuelles moyennes de copropriété sont de 988 € et le syndicat des copropriétaires ne fait pas l'objet d'une procédure citée à l'article L. 721-1 du code de la construction et de l'habitation).
Les informations sur les risques auxquels ce bien est exposé sont disponibles sur le site Géorisques : www.georisques.gouv.fr
Prix de vente : 165 000 €
Honoraires charge vendeur
Contactez votre conseiller SAFTI : Charlotte LAPEYRE, Tél. : 06 84 46 94 28, E-mail : charlotte.lapeyre@safti.fr - EI - Agent commercial immatriculé au RSAC de PARIS sous le numéro 851 006 957
Informations additionnelles
Bilan énergétique
CLASSE ÉNERGIE ET CLASSE CLIMATm².anCi
Montant estimé des dépenses annuelles d'énergie pour un usage standard : entre 610€ et 860€ par an sur l'année 2021.
Charges estimées : 988 € / an
Ce bien vous est proposé par

Charlotte Lapeyre
Toulon (83000)
15 biens en portefeuille
Je souhaite être recontacté

















