Appartement à vendre à SAINT-NAZAIRE de 66m²245 000 €
Réf 1609067
Aperçu de cet appartement à vendre de 3 pièces et 66 m²
Appartement
66m²
3
3
2
1
1
Gaz individuel
2014
Le point fort de cet appartement
Quartier calme
Description de cet appartement à vendre de 3 pièces et 66 m²
A 400 mètres de la mer
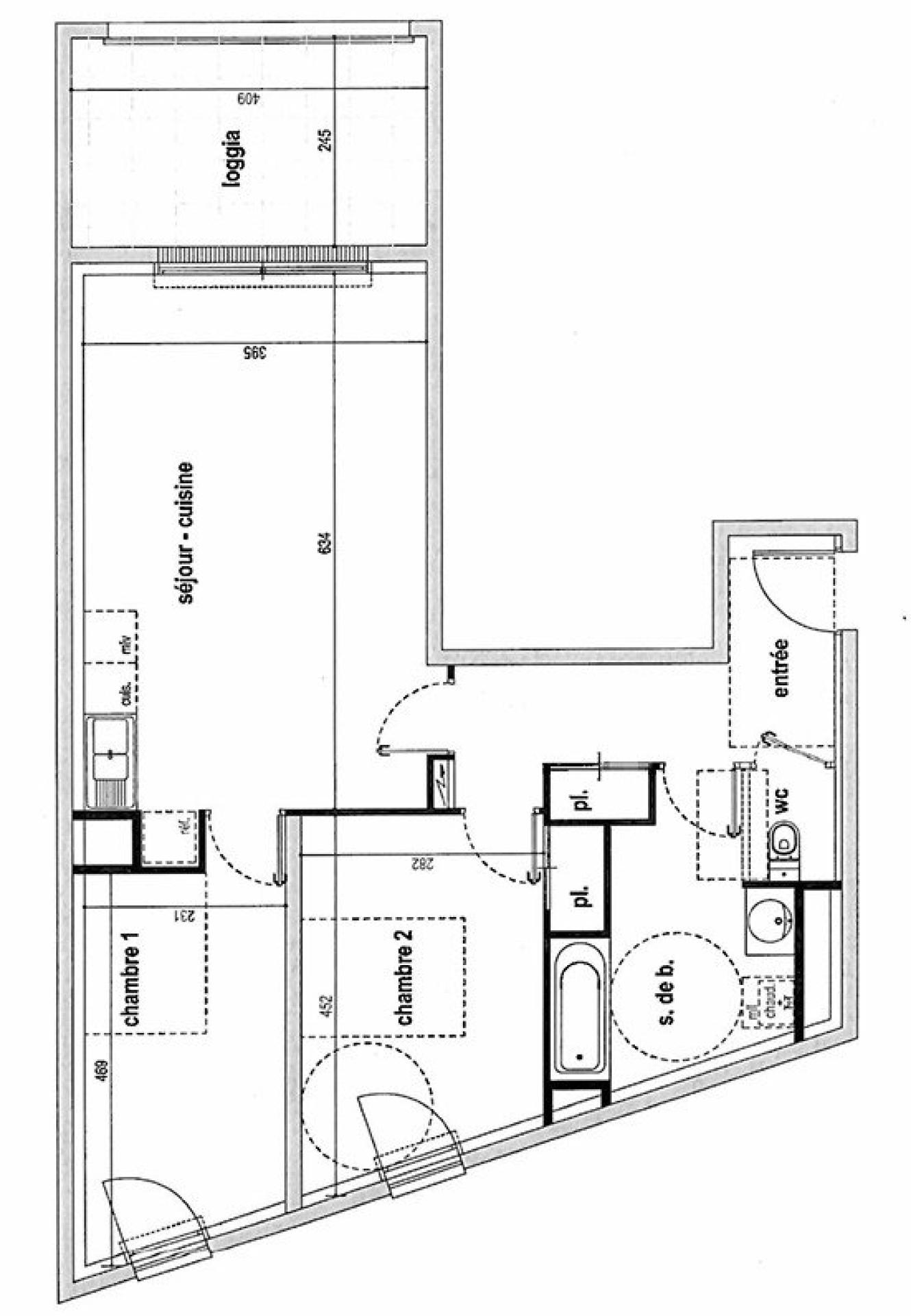
A 400 mètres de la mer et face au parc, cet appartement de 66 m2, en bon état, est idéalement situé à Saint-Nazaire.
Au 3ème étage avec ascenseur, ce bien comprend un salon/cuisine, deux chambres, une salle de bain, un WC, une loggia terrasse d'environ 10 m2 orientée Sud.
De plus, au sous-sol, une place de parking privé et un local vélo.
Complexes sportifs et arrêts de bus à proximité.
Chauffage au gaz de ville
Le bien comprend 2 lots, et il est situé dans une copropriété de 15 lots (les charges courantes annuelles moyennes de copropriété sont de 1336 € et le syndicat des copropriétaires ne fait pas l'objet d'une procédure citée à l'article L. 721-1 du code de la construction et de l'habitation).
Les informations sur les risques auxquels ce bien est exposé sont disponibles sur le site Géorisques : www.georisques.gouv.fr
Prix de vente : 245 000 €
Honoraires charge vendeur
Contactez votre conseiller SAFTI : Fabrice BARON, Tél. : 06 29 37 65 60, E-mail : fabrice.baron@safti.fr - EI - Agent commercial immatriculé au RSAC de Poitiers sous le numéro 900373861
Au 3ème étage avec ascenseur, ce bien comprend un salon/cuisine, deux chambres, une salle de bain, un WC, une loggia terrasse d'environ 10 m2 orientée Sud.
De plus, au sous-sol, une place de parking privé et un local vélo.
Complexes sportifs et arrêts de bus à proximité.
Chauffage au gaz de ville
Le bien comprend 2 lots, et il est situé dans une copropriété de 15 lots (les charges courantes annuelles moyennes de copropriété sont de 1336 € et le syndicat des copropriétaires ne fait pas l'objet d'une procédure citée à l'article L. 721-1 du code de la construction et de l'habitation).
Les informations sur les risques auxquels ce bien est exposé sont disponibles sur le site Géorisques : www.georisques.gouv.fr
Prix de vente : 245 000 €
Honoraires charge vendeur
Contactez votre conseiller SAFTI : Fabrice BARON, Tél. : 06 29 37 65 60, E-mail : fabrice.baron@safti.fr - EI - Agent commercial immatriculé au RSAC de Poitiers sous le numéro 900373861
Informations additionnelles
Bilan énergétique
CLASSE ÉNERGIE ET CLASSE CLIMATm².anCi
Montant estimé des dépenses annuelles d'énergie pour un usage standard : entre 560€ et 830€ par an sur l'année 2021.
Charges estimées : 1 336 € / an
Ce bien vous est proposé par :

Fabrice Baron
Saint-Georges-Les-Baillargeaux (86130)
44 biens en portefeuille
Je souhaite être recontacté
Un de vos proches a un projet immobilier ?
Achat ou vente, transmettez-moi l’info via l’appli SAFTI Connect et gagnez 875€ en moyenne.
















