Appartement à vendre à GUJAN-MESTRAS de 59m²353 000 €
Réf 1568136
Aperçu de cet appartement à vendre de 3 pièces et 59 m²
Appartement
59m²
1/3
3
2
1
1
1
Électrique individuel
2026
Le point fort de cet appartement
Appartement neuf d'exception, disponible à la livraison en juin 2026, ses volumes généreux et sa luminosité naturelle en font en bien rare.
Description de cet appartement à vendre de 3 pièces et 59 m²
Opportunité rare appartement neuf T3
Situé à Gujan-Mestras (33470), cet appartement bénéficie d'un emplacement privilégié dans une commune réputée pour sa qualité de vie et sa proximité avec le bassin d'Arcachon. Offrant un cadre de vie paisible, Gujan-Mestras est également connue pour ses nombreux commerces, écoles et espaces verts, offrant ainsi un équilibre idéal entre nature et commodités pour ses habitants.
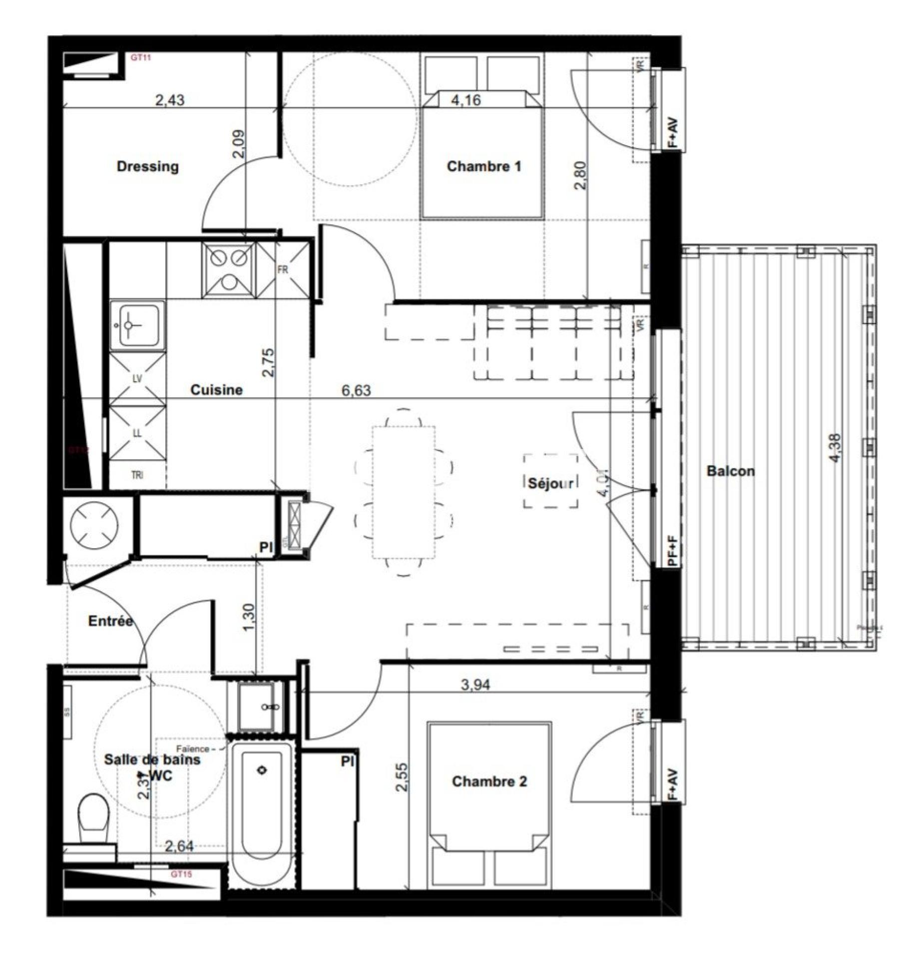
Ce bien dispose d'une place de parking, d'un balcon de 9,20 m² idéal pour profiter des beaux jours, programme neuf livraison juin 2026.
Avec une surface habitable de 58 m², il se compose de 3 pièces dont 2 chambres de respectivement 11,38 m² et 10,02 m². L'entrée séjour cuisine de 27,07 m² offre un espace de vie lumineux et convivial, complété par une salle de bain avec WC de 5,56 m² et un dressing de 4,84 m².
L'intérieur de cet appartement à Gujan-Mestras se distingue par ses espaces optimisés et fonctionnels, offrant des pièces à la fois confortables et modernes. Chaque chambre bénéficie d'une superficie adéquate pour garantir intimité et confort aux occupants, tandis que la présence d'un dressing ajoute une touche de praticité appréciable. Le balcon est un véritable atout, offrant un espace extérieur agréable pour se détendre ou partager des moments en plein air.
Le bien comprend 2 lots, et il est situé dans une copropriété de 51 lots (les charges courantes annuelles moyennes de copropriété sont de 1 € et le syndicat des copropriétaires ne fait pas l'objet d'une procédure citée à l'article L. 721-1 du code de la construction et de l'habitation).
Les informations sur les risques auxquels ce bien est exposé sont disponibles sur le site Géorisques : www.georisques.gouv.fr
Prix de vente : 353 000 €
Honoraires charge vendeur
Contactez votre conseiller SAFTI : Gaëlle SIAD, Tél. : 0663616110, E-mail : gaelle.siad@safti.fr - EI - Agent commercial immatriculé au RSAC de BORDEAUX sous le numéro 803378173
Ce bien dispose d'une place de parking, d'un balcon de 9,20 m² idéal pour profiter des beaux jours, programme neuf livraison juin 2026.
Avec une surface habitable de 58 m², il se compose de 3 pièces dont 2 chambres de respectivement 11,38 m² et 10,02 m². L'entrée séjour cuisine de 27,07 m² offre un espace de vie lumineux et convivial, complété par une salle de bain avec WC de 5,56 m² et un dressing de 4,84 m².
L'intérieur de cet appartement à Gujan-Mestras se distingue par ses espaces optimisés et fonctionnels, offrant des pièces à la fois confortables et modernes. Chaque chambre bénéficie d'une superficie adéquate pour garantir intimité et confort aux occupants, tandis que la présence d'un dressing ajoute une touche de praticité appréciable. Le balcon est un véritable atout, offrant un espace extérieur agréable pour se détendre ou partager des moments en plein air.
Le bien comprend 2 lots, et il est situé dans une copropriété de 51 lots (les charges courantes annuelles moyennes de copropriété sont de 1 € et le syndicat des copropriétaires ne fait pas l'objet d'une procédure citée à l'article L. 721-1 du code de la construction et de l'habitation).
Les informations sur les risques auxquels ce bien est exposé sont disponibles sur le site Géorisques : www.georisques.gouv.fr
Prix de vente : 353 000 €
Honoraires charge vendeur
Contactez votre conseiller SAFTI : Gaëlle SIAD, Tél. : 0663616110, E-mail : gaelle.siad@safti.fr - EI - Agent commercial immatriculé au RSAC de BORDEAUX sous le numéro 803378173
Informations additionnelles
Bilan énergétique
Non RenseignéCharges estimées : 1 € / an
Ce bien vous est proposé par

Gaëlle Siad
Arcachon (33120)
14 biens en portefeuille
Je souhaite être recontacté

















