Terrain à vendre à VIRE NORMANDIE de 485m²36 950 €
Réf 1578408
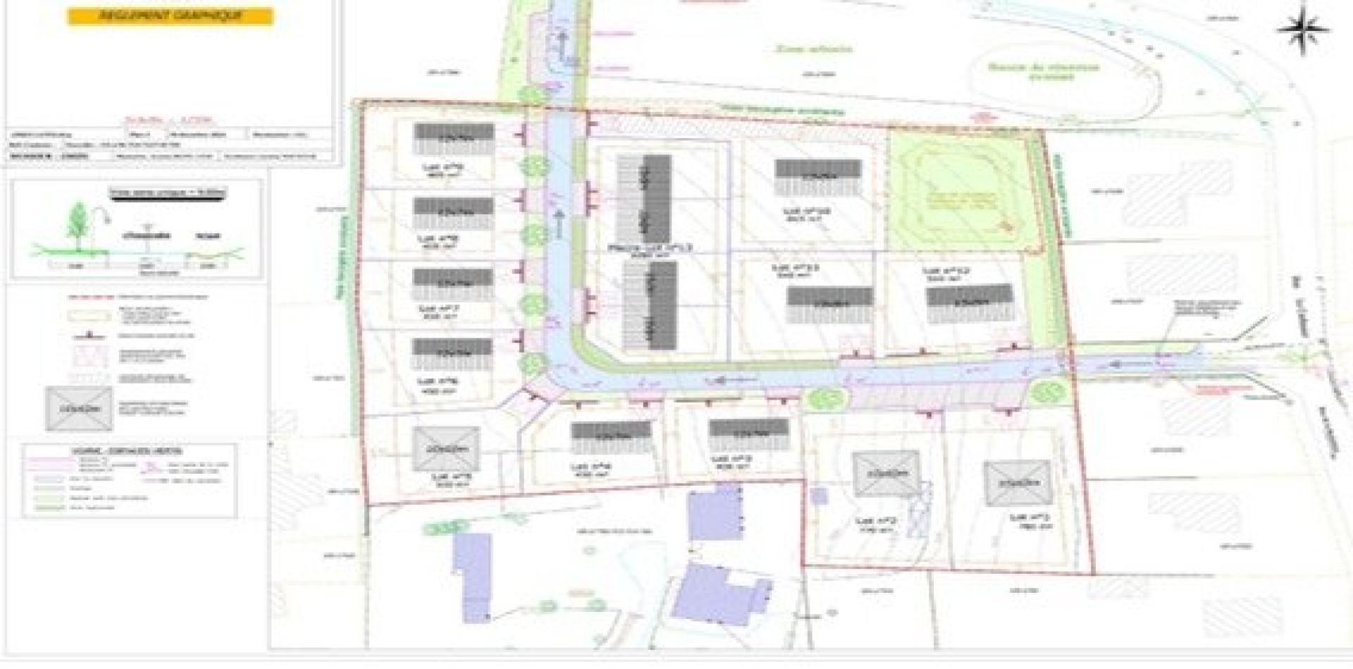
Aperçu de ce terrain à vendre de 485 m²
Terrain
485m²
485m²
Le point fort de ce terrain
Terrain à bâtir de 485 m2 proche centre ville de Vire.
Description de ce terrain à vendre de 485 m²
Safti-Benjamin Marcouiller vous propose : Terrain à bâtir.
Benjamin Marcouiller vous propose ce terrain de 485 m², situé à Vire, proche du centre ville à seulement 1.3 km, dans un lotissement au calme, à proximité des commerces, pole santé et école.
Terrain viabilisé :
- en eau.
- électricité.
- tout à l’égout.
- fibre.
Libre de constructeur.
Plusieurs terrain à bâtir sont à vendre ( 6 lots en tout, les parcelles sur ligné ) d'une superficie allant de 400m2 à 815m2.
Les informations sur les risques auxquels ce bien est exposé sont disponibles sur le site Géorisques : www.georisques.gouv.fr
Prix de vente : 36 950 €
Honoraires charge vendeur
Contactez votre conseiller SAFTI : Benjamin MARCOUILLER, Tél. : 0777806110, E-mail : benjamin.marcouiller@safti.fr - EI - Agent commercial immatriculé au RSAC de CAEN sous le numéro 918 012 204
Terrain viabilisé :
- en eau.
- électricité.
- tout à l’égout.
- fibre.
Libre de constructeur.
Plusieurs terrain à bâtir sont à vendre ( 6 lots en tout, les parcelles sur ligné ) d'une superficie allant de 400m2 à 815m2.
Les informations sur les risques auxquels ce bien est exposé sont disponibles sur le site Géorisques : www.georisques.gouv.fr
Prix de vente : 36 950 €
Honoraires charge vendeur
Contactez votre conseiller SAFTI : Benjamin MARCOUILLER, Tél. : 0777806110, E-mail : benjamin.marcouiller@safti.fr - EI - Agent commercial immatriculé au RSAC de CAEN sous le numéro 918 012 204
Ce bien vous est proposé par :

Benjamin Marcouiller
Vire Normandie (14500)
69 biens en portefeuille
Je souhaite être recontacté
Un de vos proches a un projet immobilier ?
Achat ou vente, transmettez-moi l’info via l’appli SAFTI Connect et gagnez 875€ en moyenne.






