Maison à vendre à LE FRANCOIS de 254m²346 000 €
Réf 1554166
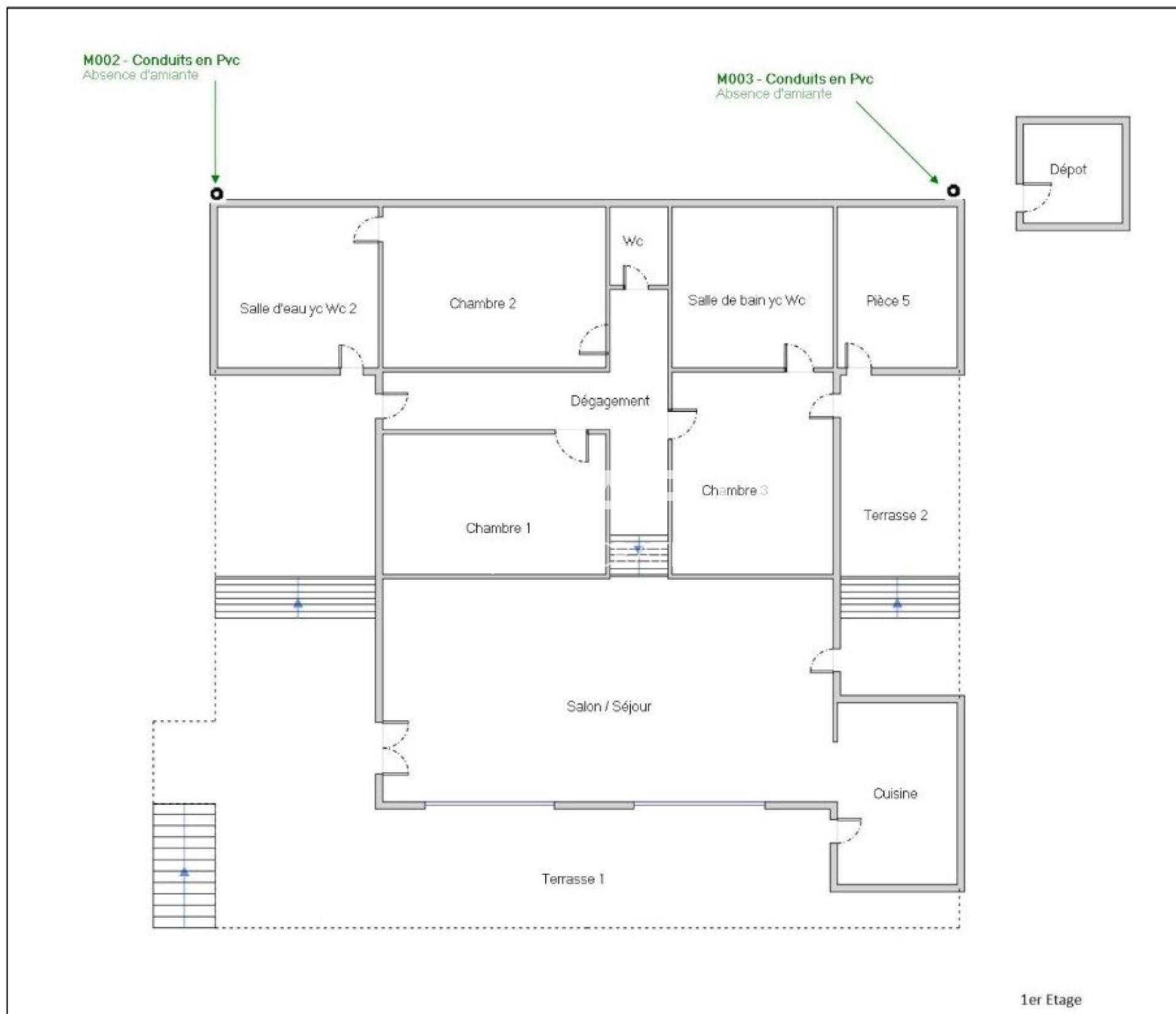
Aperçu de cette maison à vendre de 4 pièces et 254 m²
Maison
254m²
4
3
2
3
2 744m²
1980
Description de cette maison à vendre de 4 pièces et 254 m²
Maison au calme avec potentiel locatif
Cyndra CRATER vous propose , située dans un environnement paisible sur la commune du François, cette maison profite d’un emplacement stratégique avec un accès rapide vers Le Saint-Esprit, Le François, Ducos et Le Lamentin. Idéal pour un projet familial ou un investissement locatif performant.
Cette maison sur deux niveaux offre de nombreuses possibilités :
• À l’étage : séjour, cuisine, 3 chambres dont 2 avec salle d’eau, WC indépendant, et une pièce
• Au rez-de-chaussée : espace à réaménager permettant la création d’un logement locatif ou d’un espace indépendant
À l’extérieur, vous pourrez profiter :
• d’un jardin fruitier
• d’un terrain offrant un potentiel piscinable
• d’une belle ventilation naturelle et de vues dégagées
Des travaux de rénovations sont à prévoir afin de mettre le bien au goût du jour.
A découvrir rapidement!
Les informations sur les risques auxquels ce bien est exposé sont disponibles sur le site Géorisques : www.georisques.gouv.fr
Prix de vente : 346 000 €
Honoraires charge vendeur
Contactez votre conseiller SAFTI : Cyndra CRATER, Tél. : 0696692659, E-mail : cyndra.crater@safti.fr - EI - Agent commercial immatriculé au RSAC de Fort de France sous le numéro 847997160
Cette maison sur deux niveaux offre de nombreuses possibilités :
• À l’étage : séjour, cuisine, 3 chambres dont 2 avec salle d’eau, WC indépendant, et une pièce
• Au rez-de-chaussée : espace à réaménager permettant la création d’un logement locatif ou d’un espace indépendant
À l’extérieur, vous pourrez profiter :
• d’un jardin fruitier
• d’un terrain offrant un potentiel piscinable
• d’une belle ventilation naturelle et de vues dégagées
Des travaux de rénovations sont à prévoir afin de mettre le bien au goût du jour.
A découvrir rapidement!
Les informations sur les risques auxquels ce bien est exposé sont disponibles sur le site Géorisques : www.georisques.gouv.fr
Prix de vente : 346 000 €
Honoraires charge vendeur
Contactez votre conseiller SAFTI : Cyndra CRATER, Tél. : 0696692659, E-mail : cyndra.crater@safti.fr - EI - Agent commercial immatriculé au RSAC de Fort de France sous le numéro 847997160
Informations additionnelles
Bilan énergétique
Non obligatoireDiagnostic de Performance Energétique
Non obligatoireGaz à effet de serre
Ce bien vous est proposé par :

Cyndra Crater
Saint-Esprit (97270)
6 biens en portefeuille
Je souhaite être recontacté
Un de vos proches a un projet immobilier ?
Achat ou vente, transmettez-moi l’info via l’appli SAFTI Connect et gagnez 875€ en moyenne.
















