Maison à vendre à FRONTON de 170m²568 000 €Voir l'annonce sur SAFTI Prestige
Aperçu de cette maison à vendre de 8 pièces et 170 m²
Maison
170m²
8
6
2
4
858m²
2021
Description de cette maison à vendre de 8 pièces et 170 m²
FRONTON – Ensemble immobilier récent composé de deux habitations – Idéal investissement
À Fronton, dans un environnement résidentiel calme et agréable, découvrez un bien atypique et rare sur le secteur : un ensemble immobilier récent composé de deux habitations mitoyennes avec garages, offrant de nombreuses possibilités d’exploitation.
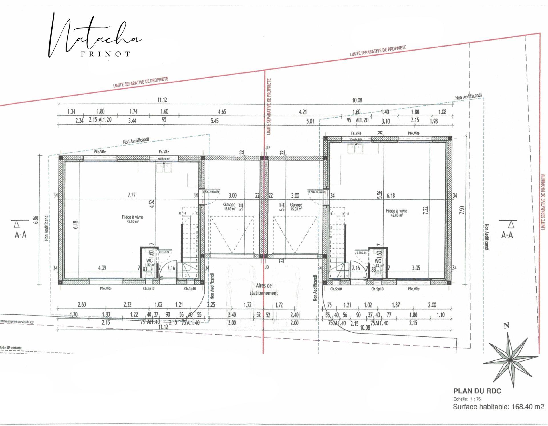
Édifié sur une parcelle d’environ 858 m², cet ensemble développe environ 170 m² habitables au total, répartis sur deux maisons indépendantes, chacune disposant de son propre accès.
Chaque logement propose une spacieuse pièce de vie d’environ 40 m², un garage, ainsi qu’un étage dédié à l’espace nuit, permettant d’envisager différents projets selon vos besoins.
Ce bien peut parfaitement convenir pour :
• un investissement locatif avec deux logements
• un projet familial (habiter une maison et louer l’autre)
• un projet patrimonial
• une revente par lots
L’ensemble immobilier bénéficie d’une construction récente ainsi que d’éléments techniques déjà réalisés, notamment une étude de sol géotechnique G2 PRO, confirmant la faisabilité et la conformité des fondations pour des constructions de type maison individuelle.
La situation géographique est idéale, à proximité des commerces, des écoles et avec un accès rapide aux axes menant vers Toulouse.
Ce bien atypique s’adresse particulièrement à un acquéreur souhaitant valoriser un ensemble immobilier offrant plusieurs possibilités d’exploitation.
Dossier complet et informations complémentaires disponibles sur demande.
Les informations sur les risques auxquels ce bien est exposé sont disponibles sur le site Géorisques : www.georisques.gouv.fr
Prix de vente : 568 000 €
Honoraires charge vendeur
Contactez votre conseiller SAFTI : Emilie MALPUECH, Tél. : 0651191332, E-mail : emilie.malpuech@safti.fr - EI - Agent commercial immatriculé au RSAC de Toulouse sous le numéro 524410917
Édifié sur une parcelle d’environ 858 m², cet ensemble développe environ 170 m² habitables au total, répartis sur deux maisons indépendantes, chacune disposant de son propre accès.
Chaque logement propose une spacieuse pièce de vie d’environ 40 m², un garage, ainsi qu’un étage dédié à l’espace nuit, permettant d’envisager différents projets selon vos besoins.
Ce bien peut parfaitement convenir pour :
• un investissement locatif avec deux logements
• un projet familial (habiter une maison et louer l’autre)
• un projet patrimonial
• une revente par lots
L’ensemble immobilier bénéficie d’une construction récente ainsi que d’éléments techniques déjà réalisés, notamment une étude de sol géotechnique G2 PRO, confirmant la faisabilité et la conformité des fondations pour des constructions de type maison individuelle.
La situation géographique est idéale, à proximité des commerces, des écoles et avec un accès rapide aux axes menant vers Toulouse.
Ce bien atypique s’adresse particulièrement à un acquéreur souhaitant valoriser un ensemble immobilier offrant plusieurs possibilités d’exploitation.
Dossier complet et informations complémentaires disponibles sur demande.
Les informations sur les risques auxquels ce bien est exposé sont disponibles sur le site Géorisques : www.georisques.gouv.fr
Prix de vente : 568 000 €
Honoraires charge vendeur
Contactez votre conseiller SAFTI : Emilie MALPUECH, Tél. : 0651191332, E-mail : emilie.malpuech@safti.fr - EI - Agent commercial immatriculé au RSAC de Toulouse sous le numéro 524410917
Informations additionnelles
Bilan énergétique
Non obligatoireDiagnostic de Performance Energétique
Non obligatoireGaz à effet de serre
Ce bien vous est proposé par :

Emilie Malpuech
Gratentour (31150)
19 biens en portefeuille
Je souhaite être recontacté
Un de vos proches a un projet immobilier ?
Achat ou vente, transmettez-moi l’info via l’appli SAFTI Connect et gagnez 875€ en moyenne.
Ces biens pourraient vous plaire

sur SAFTI Prestige
















