Immeuble à vendre à ROUBAIX de 125m²222 000 €
Réf 1595502
Aperçu de cet immeuble à vendre de 125 m²
Immeuble
125m²
105m²
Électrique collectif
1948
Le point fort de cet immeuble
aucun travaux, DPE D, 100% d'occupation
Description de cet immeuble à vendre de 125 m²
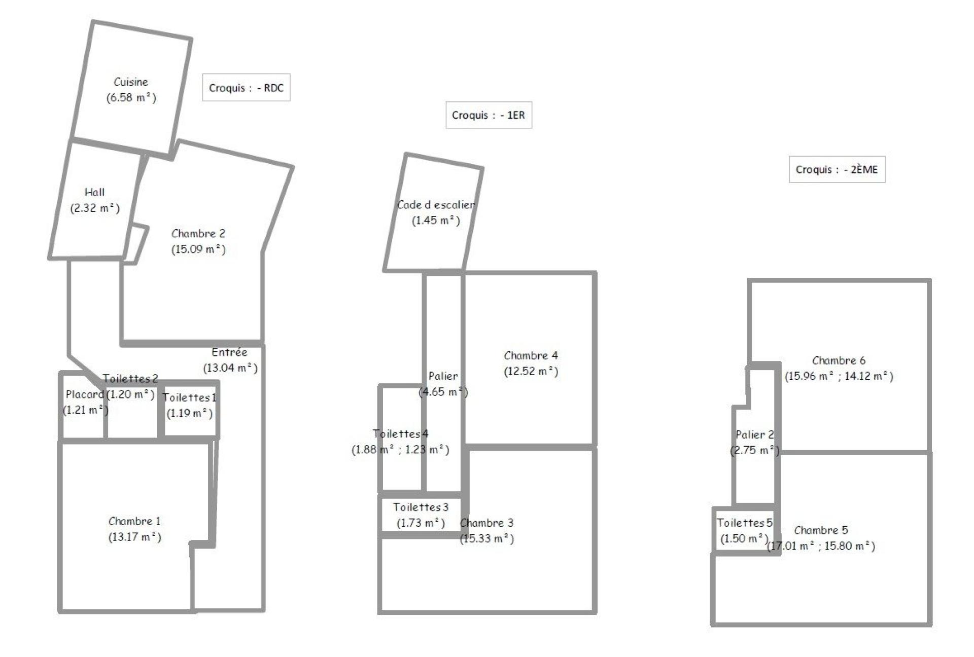
Immeuble Colocation 6 chambres
Cet immeuble de rapport destiné à la colocation se situe à moins de 20m du Métro.
Il est composé de 6 chambres individuelles avec un taux d'occupation de 100% ! Ce qui en fait un investissement intéressant dès l'achat.
4 chambres à 450e
2 chambres à 430e
12 à 16m²/ chambre
Au total c'est 2660e/mois de loyer ce qui amène à une rentabilité très élevée.
L'immeuble est bien entretenu, aucun travaux à prévoir ni même de peinture
Les informations sur les risques auxquels ce bien est exposé sont disponibles sur le site Géorisques : www.georisques.gouv.fr
Prix de vente : 222 000 €
Honoraires charge vendeur
Contactez votre conseiller SAFTI : Jérémy DAMBRY, Tél. : 0770349391, E-mail : jeremy.dambry@safti.fr - EI - Agent commercial immatriculé au RSAC de Lille sous le numéro 903333284
Il est composé de 6 chambres individuelles avec un taux d'occupation de 100% ! Ce qui en fait un investissement intéressant dès l'achat.
4 chambres à 450e
2 chambres à 430e
12 à 16m²/ chambre
Au total c'est 2660e/mois de loyer ce qui amène à une rentabilité très élevée.
L'immeuble est bien entretenu, aucun travaux à prévoir ni même de peinture
Les informations sur les risques auxquels ce bien est exposé sont disponibles sur le site Géorisques : www.georisques.gouv.fr
Prix de vente : 222 000 €
Honoraires charge vendeur
Contactez votre conseiller SAFTI : Jérémy DAMBRY, Tél. : 0770349391, E-mail : jeremy.dambry@safti.fr - EI - Agent commercial immatriculé au RSAC de Lille sous le numéro 903333284
Informations additionnelles
Bilan énergétique
CLASSE ÉNERGIE ET CLASSE CLIMATm².anDi
Montant estimé des dépenses annuelles d'énergie pour un usage standard : entre 2160€ et 2960€ par an sur l'année 2021.
Ce bien vous est proposé par :

Jérémy Dambry
Lomme (59160)
11 biens en portefeuille
Je souhaite être recontacté
Un de vos proches a un projet immobilier ?
Achat ou vente, transmettez-moi l’info via l’appli SAFTI Connect et gagnez 875€ en moyenne.






