Appartement à vendre à GUJAN-MESTRAS de 92m²581 000 €
Réf 1568087
Aperçu de cet appartement à vendre de 4 pièces et 92 m²
Appartement
92m²
3/3
4
3
2
1
2
Individuel
2026
Le point fort de cet appartement
Appartement neuf d'exception, disponible à la livraison en juin 2026, ses volumes généreux et sa luminosité naturelle en font en bien rare.
Description de cet appartement à vendre de 4 pièces et 92 m²
Rare opportunité appartement T4
Situé dans la charmante ville de Gujan-Mestras, cet appartement bénéficie d'un emplacement privilégié proche des commodités et des activités locales. La ville animée offre un cadre de vie agréable, avec ses commerces, restaurants et proximité avec le bassin d'Arcachon, idéal pour les amoureux de la nature et de la mer.
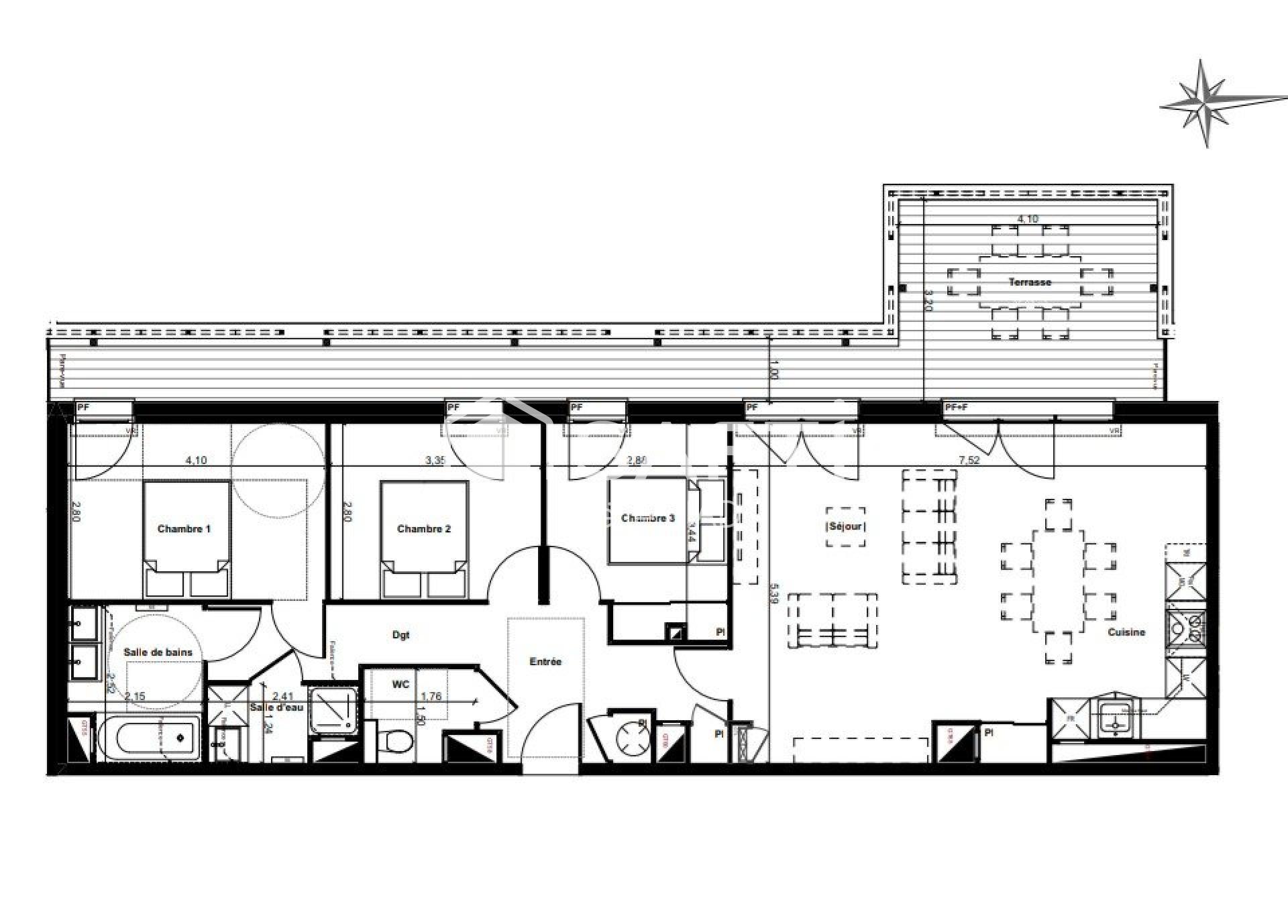
Doté de 2 places de parking en sous-sol, cet appartement de 91 m² propose un espace extérieur attrayant avec une terrasse spacieuse de 26,65 m². Parfait pour profiter des journées ensoleillées et des douces soirées d'été, cet espace extérieur offre un coin de détente et de convivialité en plein air.
À l'intérieur, ce bien neuf offre un agencement moderne et fonctionnel. L'entrée s'ouvre sur un séjour lumineux avec une cuisine ouverte de 51,60 m², offrant un espace de vie convivial. Les 3 chambres, allant de 9,14 m² à 11,48 m², offrent des espaces de repos
confortables, ce bien est idéal pour une famille ou des amateurs d'espace et de modernité.
Livraison prévue en juin 2026.
Le bien comprend 3 lots, et il est situé dans une copropriété de 51 lots (les charges courantes annuelles moyennes de copropriété sont de 1 € et le syndicat des copropriétaires ne fait pas l'objet d'une procédure citée à l'article L. 721-1 du code de la construction et de l'habitation).
Les informations sur les risques auxquels ce bien est exposé sont disponibles sur le site Géorisques : www.georisques.gouv.fr
Prix de vente : 581 000 €
Honoraires charge vendeur
Contactez votre conseiller SAFTI : Gaëlle SIAD, Tél. : 0663616110, E-mail : gaelle.siad@safti.fr - EI - Agent commercial immatriculé au RSAC de BORDEAUX sous le numéro 803378173
Doté de 2 places de parking en sous-sol, cet appartement de 91 m² propose un espace extérieur attrayant avec une terrasse spacieuse de 26,65 m². Parfait pour profiter des journées ensoleillées et des douces soirées d'été, cet espace extérieur offre un coin de détente et de convivialité en plein air.
À l'intérieur, ce bien neuf offre un agencement moderne et fonctionnel. L'entrée s'ouvre sur un séjour lumineux avec une cuisine ouverte de 51,60 m², offrant un espace de vie convivial. Les 3 chambres, allant de 9,14 m² à 11,48 m², offrent des espaces de repos
confortables, ce bien est idéal pour une famille ou des amateurs d'espace et de modernité.
Livraison prévue en juin 2026.
Le bien comprend 3 lots, et il est situé dans une copropriété de 51 lots (les charges courantes annuelles moyennes de copropriété sont de 1 € et le syndicat des copropriétaires ne fait pas l'objet d'une procédure citée à l'article L. 721-1 du code de la construction et de l'habitation).
Les informations sur les risques auxquels ce bien est exposé sont disponibles sur le site Géorisques : www.georisques.gouv.fr
Prix de vente : 581 000 €
Honoraires charge vendeur
Contactez votre conseiller SAFTI : Gaëlle SIAD, Tél. : 0663616110, E-mail : gaelle.siad@safti.fr - EI - Agent commercial immatriculé au RSAC de BORDEAUX sous le numéro 803378173
Informations additionnelles
Bilan énergétique
Non obligatoireDiagnostic de Performance Energétique
Non obligatoireGaz à effet de serre
Ce bien vous est proposé par

Gaëlle Siad
Arcachon (33120)
12 biens en portefeuille
Je souhaite être recontacté
Ces biens pourraient vous plaire

sur SAFTI Prestige














