Terrain à vendre à PRUNAY-LE-TEMPLE de 1006m²206 000 €
Réf 1602848
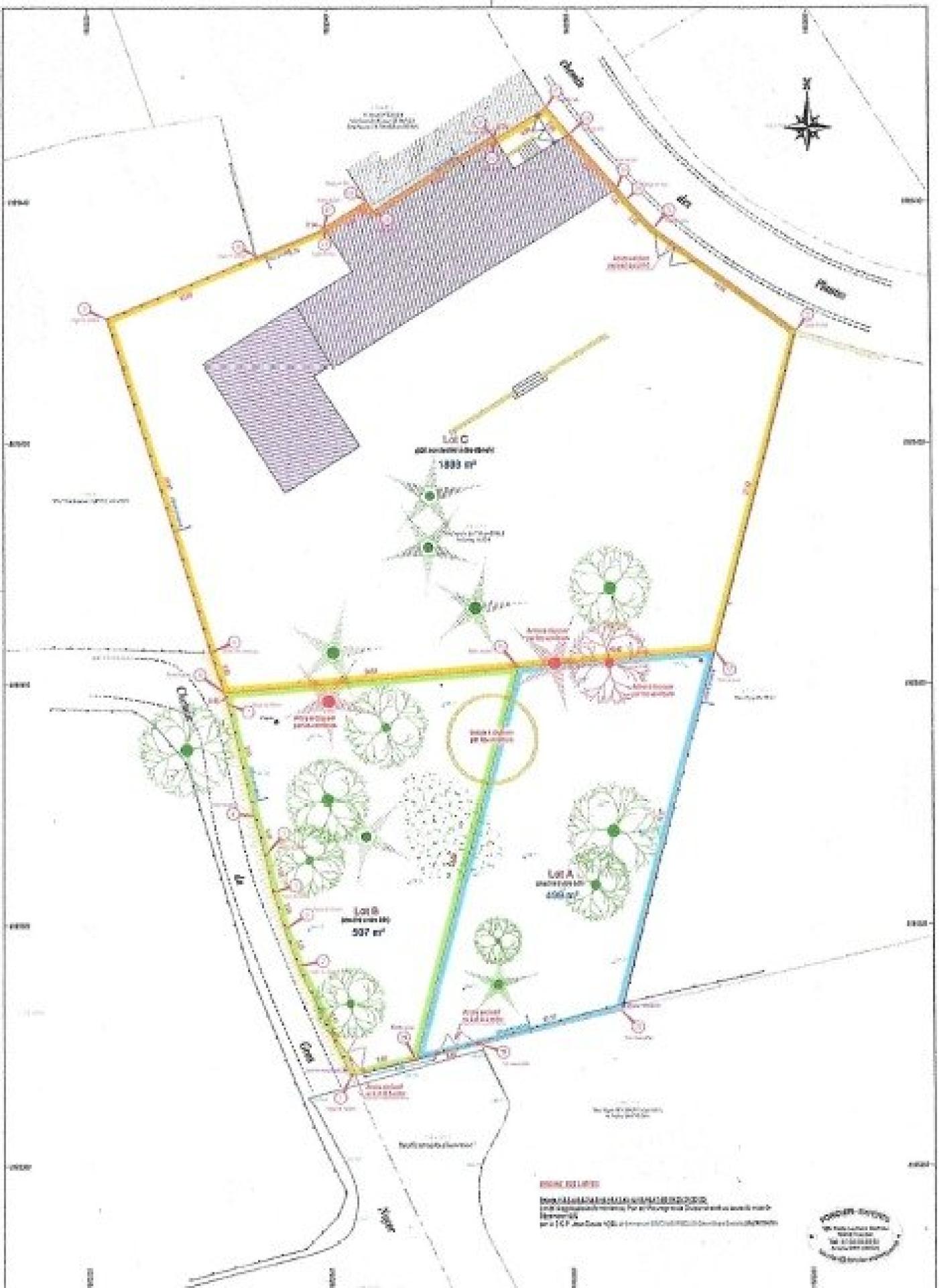
Aperçu de ce terrain à vendre de 1006 m²
Terrain
1 006m²
1 006m²
Le point fort de ce terrain
Grand terrain arboré
Description de ce terrain à vendre de 1006 m²
Terrain exceptionnel dans un endroit calme et verdoyant
Très beau terrain situé à Prunay-le-Temple, découvrez un terrain exceptionnel de 1006 m² dans un environnement calme et verdoyant, au cœur du village, ce terrain arboré et baigné de tranquillité vous offre un cadre idéal pour construire la maison dont vous rêvez. À seulement 5 minutes en voiture, vous aurez accès à toutes les commodités dans le village d'Orgerus: commerces, gare et supermarché Auchan. Le terrain n’est pas viabilisé, mais l’étude de sol est déjà réalisée, vous permettant d’aborder votre projet en toute sérénité. Ce bien rare conjugue espace, nature et praticité. Que vous soyez en quête d’un havre de paix pour votre famille ou d’un investissement intelligent, ce terrain est une opportunité à ne pas manquer. Les écoles sont à proximité immédiate : maternelle et primaire à 350 mètres à pied, collège à 3,5 km, transports scolaires.
Les informations sur les risques auxquels ce bien est exposé sont disponibles sur le site Géorisques : www.georisques.gouv.fr
Prix de vente : 206 000 €
Honoraires charge vendeur
Contactez votre conseiller SAFTI : Leïla ENGASSER, Tél. : 06 17 86 07 20, E-mail : leila.engasser@safti.fr - EI - Agent commercial immatriculé au RSAC de EVREUX sous le numéro 893 694 133
Les informations sur les risques auxquels ce bien est exposé sont disponibles sur le site Géorisques : www.georisques.gouv.fr
Prix de vente : 206 000 €
Honoraires charge vendeur
Contactez votre conseiller SAFTI : Leïla ENGASSER, Tél. : 06 17 86 07 20, E-mail : leila.engasser@safti.fr - EI - Agent commercial immatriculé au RSAC de EVREUX sous le numéro 893 694 133
Ce bien vous est proposé par :

Leïla Engasser
Croth (27530)
31 biens en portefeuille
Je souhaite être recontacté
Un de vos proches a un projet immobilier ?
Achat ou vente, transmettez-moi l’info via l’appli SAFTI Connect et gagnez 875€ en moyenne.






