Terrain à vendre à MEYRALS de 10039m²30 000 €
Réf 1583592
Aperçu de ce terrain à vendre de 10039 m²
Terrain
10 039m²
10 039m²
Description de ce terrain à vendre de 10039 m²
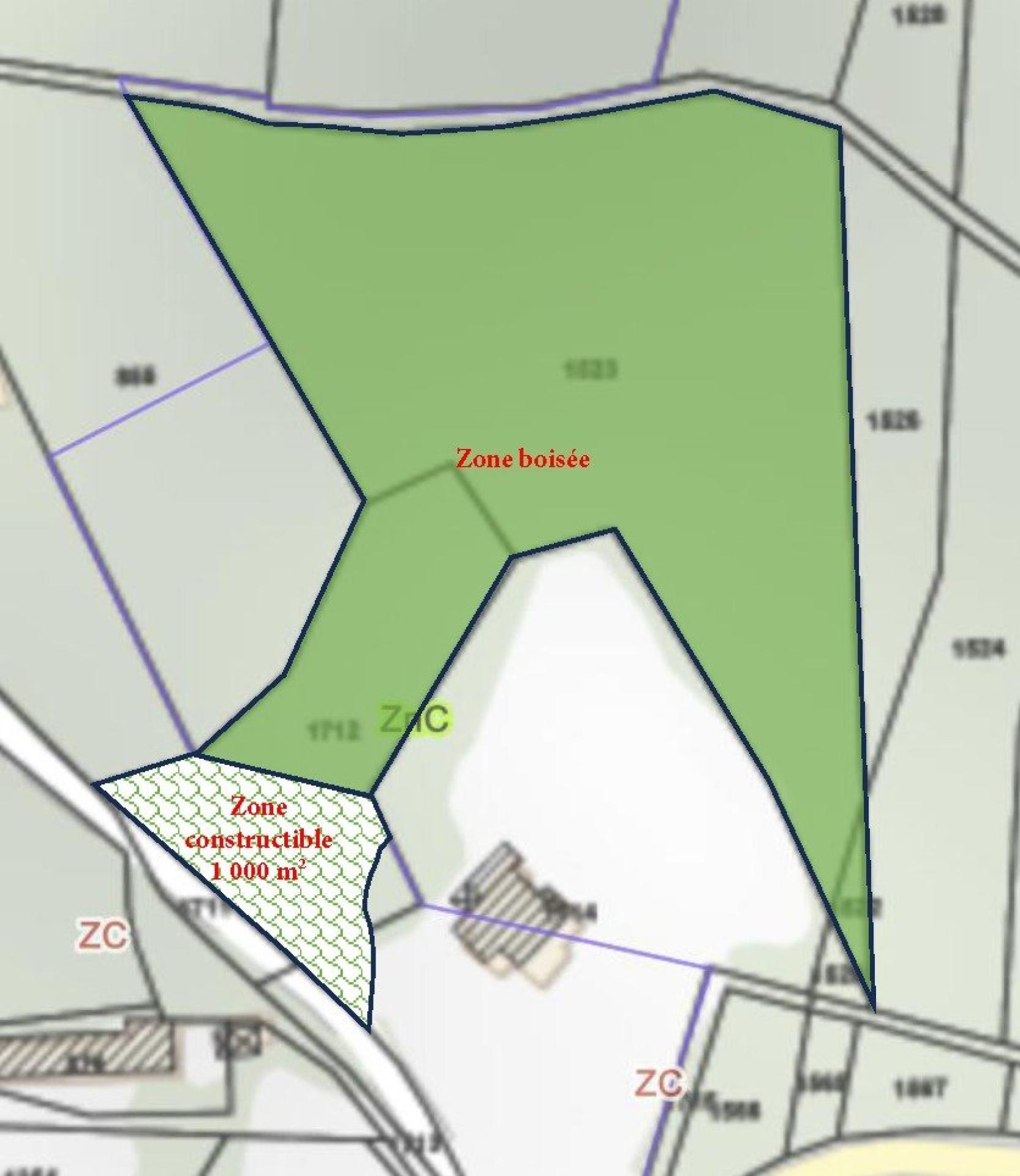
Terrain de 10 039 m² dont 1 000m² environ de constructible
Superbe terrain boisé de 10 039 m² dont 1000 m² constructible environ à l'écard de route passante et autre nuisance
A voir absolument
Les informations sur les risques auxquels ce bien est exposé sont disponibles sur le site Géorisques : www.georisques.gouv.fr
Prix de vente : 30 000 €
Honoraires charge vendeur
Contactez votre conseiller SAFTI : Michel DUPONT, Tél. : 06 61 51 17 83, E-mail : michel.dupont@safti.fr - EI - Agent commercial immatriculé au RSAC de BERGERAC sous le numéro 333 474 179
A voir absolument
Les informations sur les risques auxquels ce bien est exposé sont disponibles sur le site Géorisques : www.georisques.gouv.fr
Prix de vente : 30 000 €
Honoraires charge vendeur
Contactez votre conseiller SAFTI : Michel DUPONT, Tél. : 06 61 51 17 83, E-mail : michel.dupont@safti.fr - EI - Agent commercial immatriculé au RSAC de BERGERAC sous le numéro 333 474 179
Ce bien vous est proposé par :

Michel Dupont
Le Bugue (24260)
54 biens en portefeuille
Je souhaite être recontacté
Un de vos proches a un projet immobilier ?
Achat ou vente, transmettez-moi l’info via l’appli SAFTI Connect et gagnez 875€ en moyenne.













