Terrain à vendre à LOCOAL-MENDON de 657m²115 000 €
Réf 1592126
Aperçu de ce terrain à vendre de 657 m²
Terrain
657m²
657m²
Le point fort de ce terrain
Calme, Nature et Commune dynamique
Description de ce terrain à vendre de 657 m²
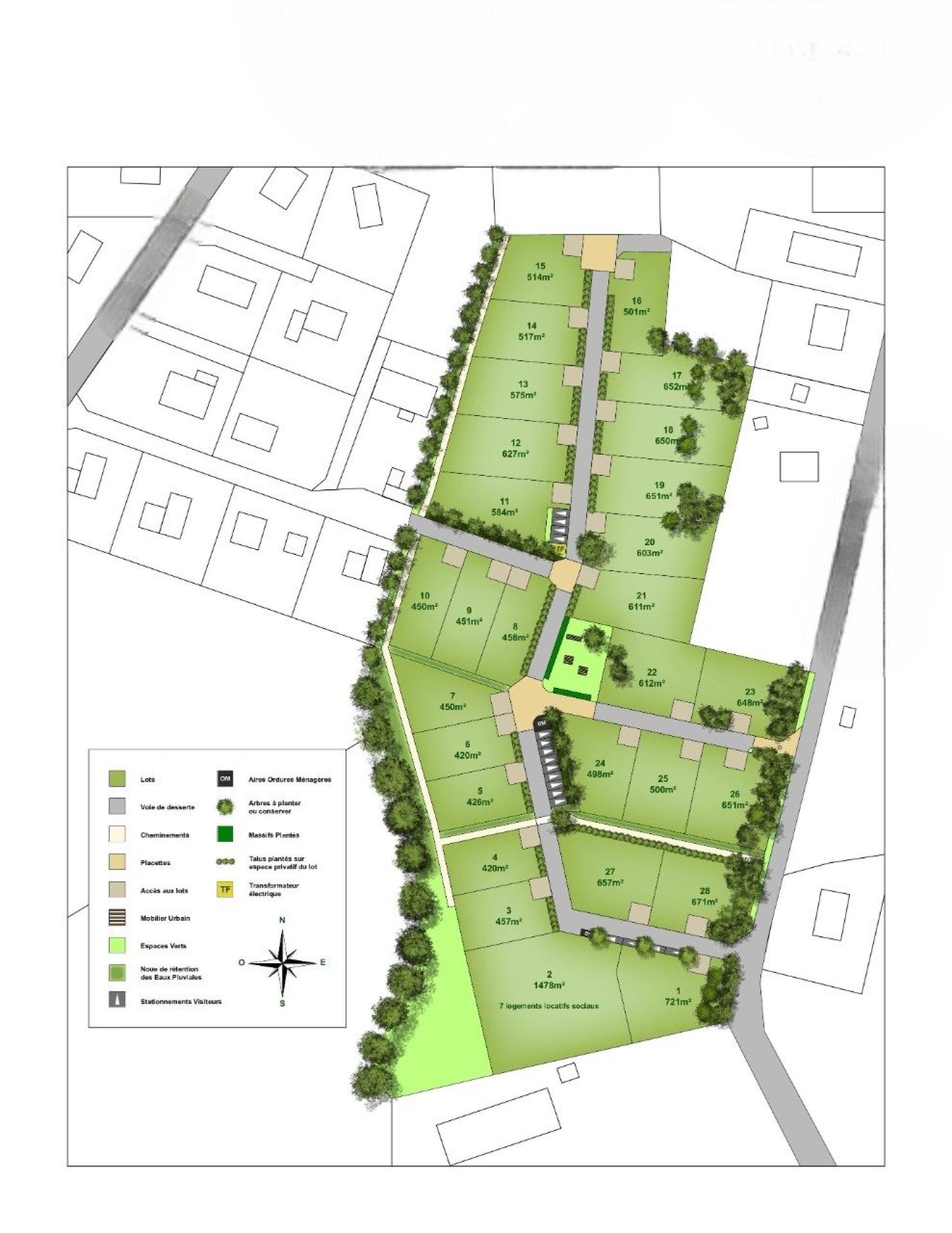
Terrain constructible et viabilisé de 657m² au calme
A Locoal Mendon, entre campagne et littoral, venez découvrir ce terrain constructible de 657m² (lot 27) situé dans un cadre de vie de qualité calme et verdoyant, à seulement quelques minutes du bourg et de ses commodités. Ses nombreuses associations sportives et culturelles, ses commerces et services de proximité (alimentation, boulangeries, médecins, pharmacie, 2 écoles maternelles et primaire) en font une commune dynamique et agréable à vivre.
Une belle opportunité pour votre projet de vie et une localisation parfaite avec les sentiers de randonnée de la RIA à proximité ainsi que les plages de la côte à environ 20 minutes : Etel, Erdeven, Plouharnel, Carnac. Locoal Mendon à mi chemin entre Lorient et Vannes est aussi situé à seulement 10 mn d’Auray et de son port animé de Saint Goustan.
Ce terrain de 657m² est vendu viabilisé, borné et avec un petit muret en pierre pour l’intégration des coffrets et d’une boîte aux lettres.
Contactez-moi pour une visite sur site !
Les informations sur les risques auxquels ce bien est exposé sont disponibles sur le site Géorisques : www.georisques.gouv.fr
Prix de vente : 115 000 €
Honoraires charge vendeur
Contactez votre conseiller SAFTI : Sophie PINSEC, Tél. : 0678402304, E-mail : sophie.pinsec@safti.fr - EI - Agent commercial immatriculé au RSAC de LORIENT sous le numéro 940289614
Une belle opportunité pour votre projet de vie et une localisation parfaite avec les sentiers de randonnée de la RIA à proximité ainsi que les plages de la côte à environ 20 minutes : Etel, Erdeven, Plouharnel, Carnac. Locoal Mendon à mi chemin entre Lorient et Vannes est aussi situé à seulement 10 mn d’Auray et de son port animé de Saint Goustan.
Ce terrain de 657m² est vendu viabilisé, borné et avec un petit muret en pierre pour l’intégration des coffrets et d’une boîte aux lettres.
Contactez-moi pour une visite sur site !
Les informations sur les risques auxquels ce bien est exposé sont disponibles sur le site Géorisques : www.georisques.gouv.fr
Prix de vente : 115 000 €
Honoraires charge vendeur
Contactez votre conseiller SAFTI : Sophie PINSEC, Tél. : 0678402304, E-mail : sophie.pinsec@safti.fr - EI - Agent commercial immatriculé au RSAC de LORIENT sous le numéro 940289614
Ce bien vous est proposé par :

Sophie Pinsec
Locoal-Mendon (56550)
11 biens en portefeuille
Je souhaite être recontacté
Un de vos proches a un projet immobilier ?
Achat ou vente, transmettez-moi l’info via l’appli SAFTI Connect et gagnez 875€ en moyenne.









