Terrain à vendre à BOULOC de 531m²128 000 €
Réf 1472207
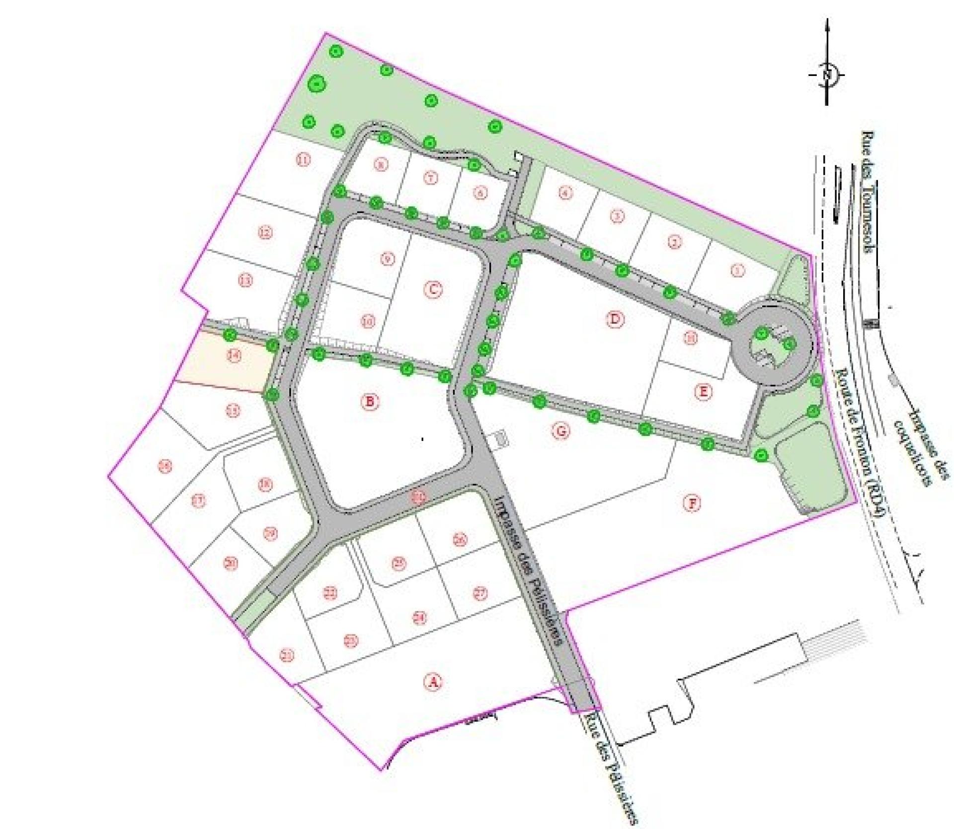
Aperçu de ce terrain à vendre de 531 m²
Terrain
531m²
531m²
Description de ce terrain à vendre de 531 m²
Terrains de 531m2 à Bouloc
Situé dans la commune de Bouloc 31620 entre le nord toulousain et Montauban fait partie du Frontonnais connu pour ses vins et ses belles bâtisses historique, bénéficie de toutes les commodités nécessaires au quotidien.
Le terrain se situe dans un lotissement avec un environnement de campagne, la nature et le calme au rendez-vous, les commerces de proximité se trouvent à deux minutes à pied , les supermarchés, pompe à essence, coiffeur, tabac, boulangerie, .. l'accès à l'autoroute est à cinq minutes environ.
De plus, sa proximité avec la métropole toulousaine garantit un accès facile aux infrastructures culturelles, sportives et professionnelles de la région.
Avec une superficie de 531m², il présente une surface de plancher de 129m2 Carrez et une emprise possible au sol de 200m2, offrant ainsi de belles perspectives pour la construction d'un projet familial.
Avec un prix attractif de 128 000 euros, cette parcelle constitue une opportunité à saisir pour réaliser un projet de construction sur-mesure dans un environnement paisible et dynamique à la fois.
Les informations sur les risques auxquels ce bien est exposé sont disponibles sur le site Géorisques : www.georisques.gouv.fr
Prix de vente : 128 000 €
Honoraires charge vendeur
Contactez votre conseiller SAFTI : Elodie PONS, Tél. : 0623898547, E-mail : elodie.pons@safti.fr - EI - Agent commercial immatriculé au RSAC de Toulouse sous le numéro 952310753
Le terrain se situe dans un lotissement avec un environnement de campagne, la nature et le calme au rendez-vous, les commerces de proximité se trouvent à deux minutes à pied , les supermarchés, pompe à essence, coiffeur, tabac, boulangerie, .. l'accès à l'autoroute est à cinq minutes environ.
De plus, sa proximité avec la métropole toulousaine garantit un accès facile aux infrastructures culturelles, sportives et professionnelles de la région.
Avec une superficie de 531m², il présente une surface de plancher de 129m2 Carrez et une emprise possible au sol de 200m2, offrant ainsi de belles perspectives pour la construction d'un projet familial.
Avec un prix attractif de 128 000 euros, cette parcelle constitue une opportunité à saisir pour réaliser un projet de construction sur-mesure dans un environnement paisible et dynamique à la fois.
Les informations sur les risques auxquels ce bien est exposé sont disponibles sur le site Géorisques : www.georisques.gouv.fr
Prix de vente : 128 000 €
Honoraires charge vendeur
Contactez votre conseiller SAFTI : Elodie PONS, Tél. : 0623898547, E-mail : elodie.pons@safti.fr - EI - Agent commercial immatriculé au RSAC de Toulouse sous le numéro 952310753
Ce bien vous est proposé par :

Elodie Pons
Toulouse (31200)
24 biens en portefeuille
Je souhaite être recontacté
Un de vos proches a un projet immobilier ?
Achat ou vente, transmettez-moi l’info via l’appli SAFTI Connect et gagnez 875€ en moyenne.















