Maison à vendre à SAINT-NIZIER-LE-BOUCHOUX de 146m²89 000 €
Réf 1573627
Aperçu de cette maison à vendre de 7 pièces et 146 m²
Maison
146m²
7
4
1
1
7 500m²
2
Bois individuel
1800
Le point fort de cette maison
Fort potentiel d'aménagement
Description de cette maison à vendre de 7 pièces et 146 m²
Maison à fort potentiel à rénover
Située à Saint-Nizier-le-Bouchoux (01560), cette propriété offre un cadre de vie calme à la campagne sur un terrain d'environ 7500 m².
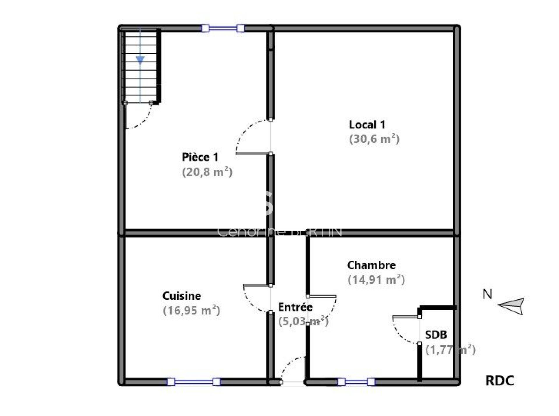
Cet ancien corps de ferme mitoyen développe environ 146 m² habitable et se distingue par son fort potentiel. Il se compose de deux logements indépendants, chacun doté de deux chambres et d’une cuisine fermée. L’un bénéficie d’une salle d’eau, l’autre d'un séjour. Les combles, entièrement aménageables, ainsi que les nombreuses dépendances ouvrent des perspectives intéressantes d’extension, de réorganisation des volumes ou de valorisation locative.
Des travaux de rénovation sont à prévoir. Contactez-moi pour organiser une visite
Les informations sur les risques auxquels ce bien est exposé sont disponibles sur le site Géorisques : www.georisques.gouv.fr
Prix de vente : 89 000 €
Honoraires charge vendeur
Contactez votre conseiller SAFTI : Cendrine BERTIN, Tél. : 06 30 53 57 89, E-mail : cendrine.bertin@safti.fr - EI - Agent commercial immatriculé au RSAC de BOURG-EN-BRESSE sous le numéro 893032375
Cet ancien corps de ferme mitoyen développe environ 146 m² habitable et se distingue par son fort potentiel. Il se compose de deux logements indépendants, chacun doté de deux chambres et d’une cuisine fermée. L’un bénéficie d’une salle d’eau, l’autre d'un séjour. Les combles, entièrement aménageables, ainsi que les nombreuses dépendances ouvrent des perspectives intéressantes d’extension, de réorganisation des volumes ou de valorisation locative.
Des travaux de rénovation sont à prévoir. Contactez-moi pour organiser une visite
Les informations sur les risques auxquels ce bien est exposé sont disponibles sur le site Géorisques : www.georisques.gouv.fr
Prix de vente : 89 000 €
Honoraires charge vendeur
Contactez votre conseiller SAFTI : Cendrine BERTIN, Tél. : 06 30 53 57 89, E-mail : cendrine.bertin@safti.fr - EI - Agent commercial immatriculé au RSAC de BOURG-EN-BRESSE sous le numéro 893032375
Informations additionnelles
Bilan énergétique
CLASSE ÉNERGIE ET CLASSE CLIMATm².anGi
Montant estimé des dépenses annuelles d'énergie pour un usage standard : entre 2090€ et 2890€ par an sur l'année 2021.
Ce bien vous est proposé par :

Cendrine Bertin
Bourg-En-Bresse (01000)
7 biens en portefeuille
Je souhaite être recontacté
Un de vos proches a un projet immobilier ?
Achat ou vente, transmettez-moi l’info via l’appli SAFTI Connect et gagnez 875€ en moyenne.



