Maison à vendre à Pierrefitte-sur-Seine de 170m²495 000 €
Réf 1623139
Aperçu de cette maison à vendre de 6 pièces et 170 m²
Maison
170m²
6
4
2
3
485m²
2
Électrique individuel
1986
Description de cette maison à vendre de 6 pièces et 170 m²
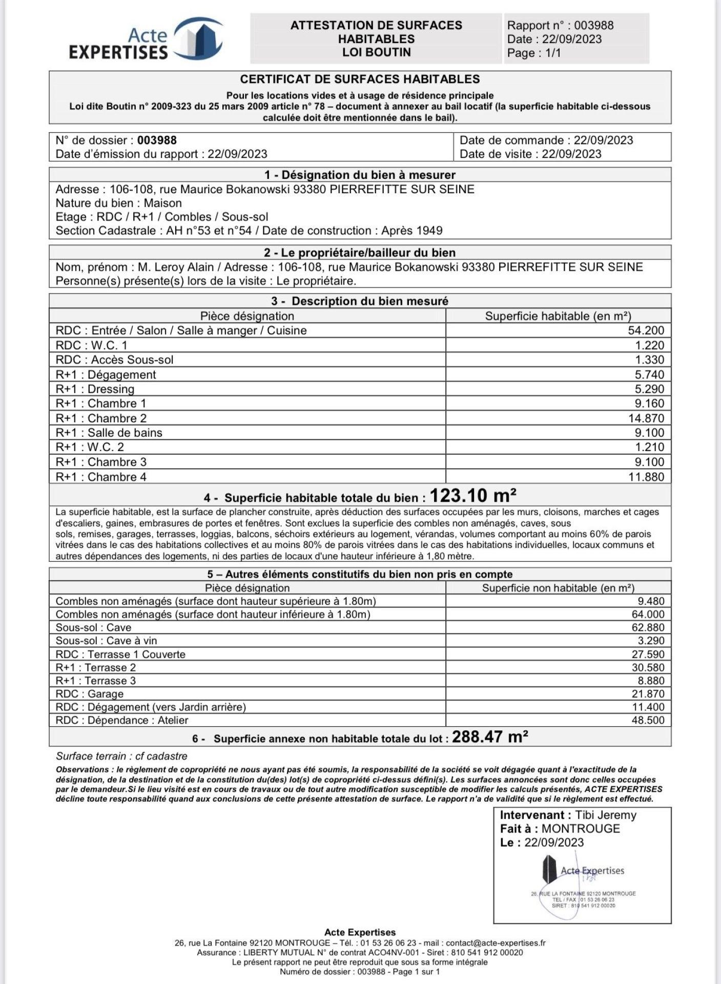
Maison 6 pièces 4 chambres de 123 m2 habitable avec une dépendance de 48 m2 Parcelles 485 m2 Jardin 350 m2
Située à Pierrefitte-sur-Seine (93380), cette maison bénéficie d'un environnement calme et familial. Proche des écoles, commerces et transports en commun, elle offre un cadre de vie pratique et agréable pour les familles en quête de tranquillité.
Édifiée sur un terrain de 485 m², cette propriété comprend une maison principale de 123 m² et une dépendance de 48 m², offrant une surface habitable totale de 170 m². Dotée de 2 places de parking, elle dispose également d'un jardin de 350 m², idéal pour profiter des belles journées en extérieur.
À l'intérieur, cette maison de 6 pièces se compose de 4 chambres climatisée, 3 toilettes et 2 salles de bain, offrant tout le confort nécessaire pour toute la famille. Construite en 1986, elle se distingue par ses espaces lumineux et fonctionnels, parfaits pour un quotidien harmonieux et convivial. Profitant d'une taxe foncière de 3236€, cette demeure est une opportunité à ne pas manquer pour un foyer en quête d'un bien familial chaleureux et bien entretenu.
Les informations sur les risques auxquels ce bien est exposé sont disponibles sur le site Géorisques : www.georisques.gouv.fr
Prix de vente : 495 000 €
Honoraires charge vendeur
Contactez votre conseiller SAFTI : David BISMUTH, Tél. : 0620678863, E-mail : david.bismuth@safti.fr - EI - Agent commercial immatriculé au RSAC de NANTERRE sous le numéro 453 986 358
Édifiée sur un terrain de 485 m², cette propriété comprend une maison principale de 123 m² et une dépendance de 48 m², offrant une surface habitable totale de 170 m². Dotée de 2 places de parking, elle dispose également d'un jardin de 350 m², idéal pour profiter des belles journées en extérieur.
À l'intérieur, cette maison de 6 pièces se compose de 4 chambres climatisée, 3 toilettes et 2 salles de bain, offrant tout le confort nécessaire pour toute la famille. Construite en 1986, elle se distingue par ses espaces lumineux et fonctionnels, parfaits pour un quotidien harmonieux et convivial. Profitant d'une taxe foncière de 3236€, cette demeure est une opportunité à ne pas manquer pour un foyer en quête d'un bien familial chaleureux et bien entretenu.
Les informations sur les risques auxquels ce bien est exposé sont disponibles sur le site Géorisques : www.georisques.gouv.fr
Prix de vente : 495 000 €
Honoraires charge vendeur
Contactez votre conseiller SAFTI : David BISMUTH, Tél. : 0620678863, E-mail : david.bismuth@safti.fr - EI - Agent commercial immatriculé au RSAC de NANTERRE sous le numéro 453 986 358
Informations additionnelles
Bilan énergétique
CLASSE ÉNERGIE ET CLASSE CLIMATm².anEi
Montant estimé des dépenses annuelles d'énergie pour un usage standard : entre 2440€ et 3360€ par an sur l'année 2021.
Ce bien vous est proposé par :

David Bismuth
Gennevilliers (92230)
44 biens en portefeuille
Je souhaite être recontacté
Un de vos proches a un projet immobilier ?
Achat ou vente, transmettez-moi l’info via l’appli SAFTI Connect et gagnez 875€ en moyenne.



















