Maison à vendre à L' HOPITAL de 157m²122 000 €
Réf 1607577
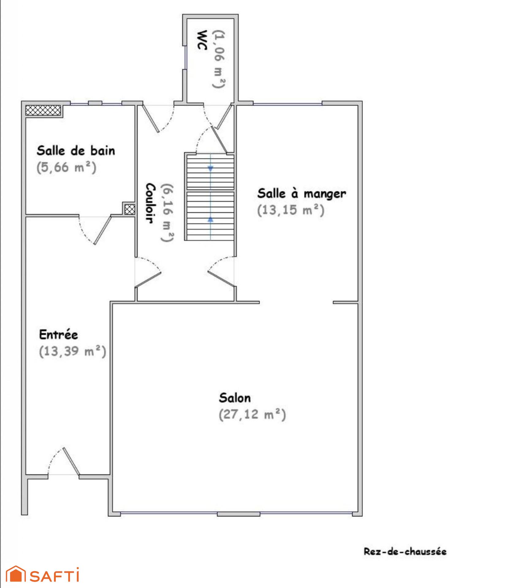
Aperçu de cette maison à vendre de 6 pièces et 157 m²
Maison
157m²
6
4
1
2
286m²
1
Gaz individuel
1955
Description de cette maison à vendre de 6 pièces et 157 m²
Maison avec jardin à prix accessible
Située dans la commune de L'Hôpital, à proximité immédiate des écoles, commerces et axes routiers, et à quelques minutes de la frontière allemande, cette maison de ville mitoyenne d’environ 157 m² offre un beau potentiel d’aménagement sur un terrain de 286 m².
Dès l’entrée, vous découvrirez un vaste hall accueillant qui distribue un salon lumineux, une salle à manger pouvant aisément être transformée en cuisine selon votre projet une salle de bain, un WC séparé, ainsi qu’un accès direct à la cave et au jardin, idéal pour profiter des beaux jours.
À l’étage, trois chambres confortables complètent l’espace nuit, ainsi qu’une pièce actuellement aménagée en cuisine, laissant entrevoir différentes possibilités d’organisation (chambre supplémentaire, bureau, salle d’eau…).
Les combles proposent une pièce déjà exploitable en bureau ou espace détente, ainsi qu’un volume supplémentaire encore aménageable selon vos besoins.
Points techniques : Double vitrage PVC / Isolation intérieure au rez-de-chaussée/ Chauffage par chaudière gaz
Quelques travaux sont à prévoir, offrant l’opportunité de repenser les espaces et de valoriser pleinement le potentiel de cette maison.
Un bien idéal pour une famille ou un investisseur en quête d’un projet à personnaliser.
Pour plus d’informations ou organiser une visite, contactez-moi.
Les informations sur les risques auxquels ce bien est exposé sont disponibles sur le site Géorisques : www.georisques.gouv.fr
Prix de vente : 122 000 €
Honoraires charge vendeur
Contactez votre conseiller SAFTI : Jonathan QUINTEN, Tél. : 06 23 30 80 13, E-mail : jonathan.quinten@safti.fr - EI - Agent commercial immatriculé au RSAC de SARREGUEMINES sous le numéro 852 436 781
Dès l’entrée, vous découvrirez un vaste hall accueillant qui distribue un salon lumineux, une salle à manger pouvant aisément être transformée en cuisine selon votre projet une salle de bain, un WC séparé, ainsi qu’un accès direct à la cave et au jardin, idéal pour profiter des beaux jours.
À l’étage, trois chambres confortables complètent l’espace nuit, ainsi qu’une pièce actuellement aménagée en cuisine, laissant entrevoir différentes possibilités d’organisation (chambre supplémentaire, bureau, salle d’eau…).
Les combles proposent une pièce déjà exploitable en bureau ou espace détente, ainsi qu’un volume supplémentaire encore aménageable selon vos besoins.
Points techniques : Double vitrage PVC / Isolation intérieure au rez-de-chaussée/ Chauffage par chaudière gaz
Quelques travaux sont à prévoir, offrant l’opportunité de repenser les espaces et de valoriser pleinement le potentiel de cette maison.
Un bien idéal pour une famille ou un investisseur en quête d’un projet à personnaliser.
Pour plus d’informations ou organiser une visite, contactez-moi.
Les informations sur les risques auxquels ce bien est exposé sont disponibles sur le site Géorisques : www.georisques.gouv.fr
Prix de vente : 122 000 €
Honoraires charge vendeur
Contactez votre conseiller SAFTI : Jonathan QUINTEN, Tél. : 06 23 30 80 13, E-mail : jonathan.quinten@safti.fr - EI - Agent commercial immatriculé au RSAC de SARREGUEMINES sous le numéro 852 436 781
Informations additionnelles
Bilan énergétique
CLASSE ÉNERGIE ET CLASSE CLIMATm².anEi
Montant estimé des dépenses annuelles d'énergie pour un usage standard : entre 3970€ et 5440€ par an sur l'année 2021.
Ce bien vous est proposé par :

Jonathan Quinten
L' Hôpital (57490)
20 biens en portefeuille
Je souhaite être recontacté
Un de vos proches a un projet immobilier ?
Achat ou vente, transmettez-moi l’info via l’appli SAFTI Connect et gagnez 875€ en moyenne.

















