Maison à vendre à CIVENS de 84m²179 000 €
Réf 1616393
Aperçu de cette maison à vendre de 4 pièces et 84 m²
Maison
84m²
4
3
1
2
164m²
2
Individuel
2024
Le point fort de cette maison
3 CHAMBRES / SALON SEJOUR / MAISON NEUVE MITOYENNE / PARCELLE 164 M2 / 2 PLACES DE STATIONNEMENT / CLASSE ENERGIE A/A SECTEUR CALME A L
Description de cette maison à vendre de 4 pièces et 84 m²
MAISON NEUVE 84M2 3 CHAMBRES/ CELLIER/PARKING/CALME
A SAISIR reste 2 lots / FRAIS DE NOTAIRE RÉDUIT
Située à Civens (42110), cette maison offre un cadre paisible et convivial. Le village bénéficie d'un environnement verdoyant, parfait pour les amateurs de nature. Les commodités telles que les écoles et les commerces se trouvent à proximité.
La maison dispose d'un extérieur d'environ 60 m². Deux places de parking privatives sont également disponible devant la maison. La construction récente en 2024 garantit une architecture moderne et des finitions de qualité, procurant un attrait visuel indéniable à cette charmante maison.
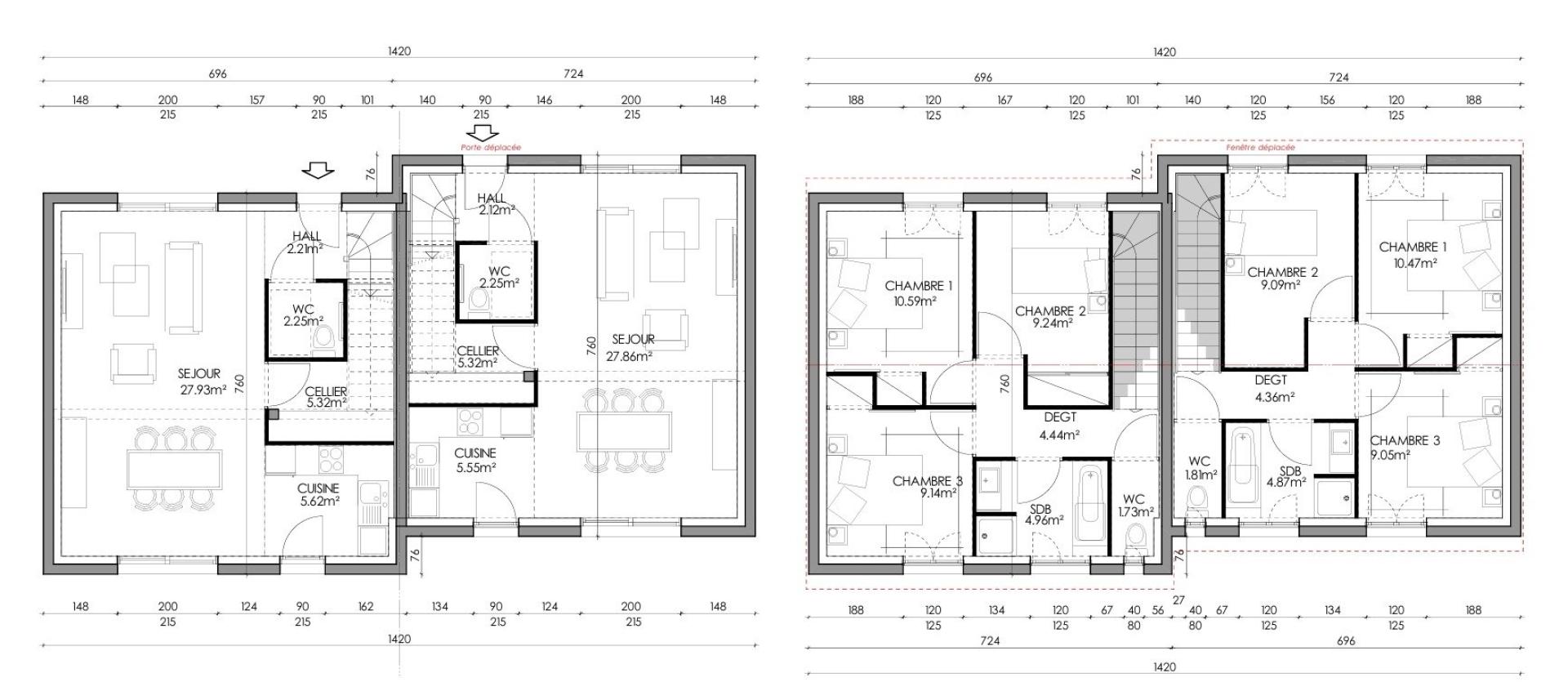
À l'intérieur, cette bien de 84 m² propose un agencement pratique et fonctionnel. Au rez-de-chaussée, la cuisine séjour + cellier + WC d'environ 43 m² constitue un espace convivial, idéal pour les repas en famille .
A l'étage vous trouverez, 3 chambres, 1 WC, une grande salle d'eau. Celle maison offre tout le confort nécessaire pour une vie de famille épanouie. Opportunité idéale pour ceux cherchant un chez-soi confortable et bien situé à Civens.
reste 2 lots disponible
Les informations sur les risques auxquels ce bien est exposé sont disponibles sur le site Géorisques : www.georisques.gouv.fr
Prix de vente : 179 000 €
Honoraires charge vendeur
Contactez votre conseiller SAFTI : Marc DA COSTA, Tél. : 0633471188, E-mail : marc.dacosta@safti.fr - EI - Agent commercial immatriculé au RSAC de Saint-Etienne sous le numéro 983438987
Située à Civens (42110), cette maison offre un cadre paisible et convivial. Le village bénéficie d'un environnement verdoyant, parfait pour les amateurs de nature. Les commodités telles que les écoles et les commerces se trouvent à proximité.
La maison dispose d'un extérieur d'environ 60 m². Deux places de parking privatives sont également disponible devant la maison. La construction récente en 2024 garantit une architecture moderne et des finitions de qualité, procurant un attrait visuel indéniable à cette charmante maison.
À l'intérieur, cette bien de 84 m² propose un agencement pratique et fonctionnel. Au rez-de-chaussée, la cuisine séjour + cellier + WC d'environ 43 m² constitue un espace convivial, idéal pour les repas en famille .
A l'étage vous trouverez, 3 chambres, 1 WC, une grande salle d'eau. Celle maison offre tout le confort nécessaire pour une vie de famille épanouie. Opportunité idéale pour ceux cherchant un chez-soi confortable et bien situé à Civens.
reste 2 lots disponible
Les informations sur les risques auxquels ce bien est exposé sont disponibles sur le site Géorisques : www.georisques.gouv.fr
Prix de vente : 179 000 €
Honoraires charge vendeur
Contactez votre conseiller SAFTI : Marc DA COSTA, Tél. : 0633471188, E-mail : marc.dacosta@safti.fr - EI - Agent commercial immatriculé au RSAC de Saint-Etienne sous le numéro 983438987
Informations additionnelles
Bilan énergétique
CLASSE ÉNERGIE ET CLASSE CLIMATm².anAi
Montant estimé des dépenses annuelles d'énergie pour un usage standard : entre 300€ et 440€ par an sur l'année 2021.
Ce bien vous est proposé par :

Marc Da Costa
Montrond-Les-Bains (42210)
27 biens en portefeuille
Je souhaite être recontacté
Un de vos proches a un projet immobilier ?
Achat ou vente, transmettez-moi l’info via l’appli SAFTI Connect et gagnez 875€ en moyenne.


