Maison à vendre à CAROMB de 185m²157 000 €
Réf 1519743
Aperçu de cette maison à vendre de 6 pièces et 185 m²
Maison
185m²
6
4
1
3
2
1930
Description de cette maison à vendre de 6 pièces et 185 m²
grande maison de ville provençale
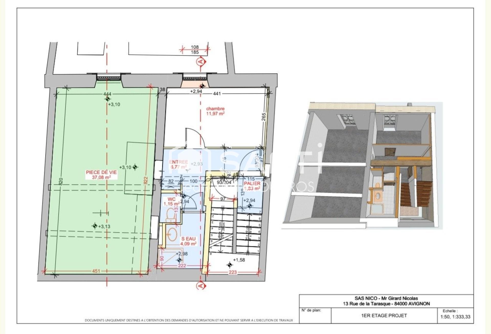
Idéalement située en plein centre du village provençal de CAROMB tout proche du fameux MONT VENTOUX, en retrait de la route et proche toutes commodités à pied Venez découvrir tout le potentiel de cette spacieuse maison de ville sur 3 niveaux de 76m² chacun , à totalement rénover (en rdc un vrai atout rare garage de 30m² environ plus 44m² hab) soit en totalité quasi 200m² habitable après travaux , cave en alcôve de 25m² idéale pour un passionné de bonnes bouteilles de vin ; le prix tient déjà compte de frais à prévoir par l'acquéreur : réfection toiture , système de chauffage type pompe à chaleur et électricité, huisseries, isolation des murs, façade, décoration ( sol/peinture/cuisine/sde) conformité raccordement tout à l'égout... Parking facile à proximité place de l'église et à quelques minutes de CARPENTRAS / 30 min de AVIGNON et sa gare TGV...
Le vendeur est un marchand de biens qui a déposé en mairie les démarches administratives pour créer deux appartements ci joint en photos les plans des 3 niveaux.
Les informations sur les risques auxquels ce bien est exposé sont disponibles sur le site Géorisques : www.georisques.gouv.fr
Prix de vente honoraires d'agence inclus : 157 000 €
Prix de vente hors honoraires d'agence : 150 000 €
Honoraires charge acquéreur : 7 000 € soit 4,67 % TTC de la valeur du bien hors honoraires
Contactez votre conseiller SAFTI : Jean-Michel DUCROS, Tél. : 0623193369, E-mail : jeanmichel.ducros@safti.fr - EI - Agent commercial immatriculé au RSAC de Avignon sous le numéro 523892966
Le vendeur est un marchand de biens qui a déposé en mairie les démarches administratives pour créer deux appartements ci joint en photos les plans des 3 niveaux.
Les informations sur les risques auxquels ce bien est exposé sont disponibles sur le site Géorisques : www.georisques.gouv.fr
Prix de vente honoraires d'agence inclus : 157 000 €
Prix de vente hors honoraires d'agence : 150 000 €
Honoraires charge acquéreur : 7 000 € soit 4,67 % TTC de la valeur du bien hors honoraires
Contactez votre conseiller SAFTI : Jean-Michel DUCROS, Tél. : 0623193369, E-mail : jeanmichel.ducros@safti.fr - EI - Agent commercial immatriculé au RSAC de Avignon sous le numéro 523892966
Informations additionnelles
Bilan énergétique
CLASSE ÉNERGIE ET CLASSE CLIMATm².anFi
Montant estimé des dépenses annuelles d'énergie pour un usage standard : entre 2410€ et 3300€ par an sur l'année 2021.
Ce bien vous est proposé par :

Jean-Michel Ducros
Beaumes-De-Venise (84190)
22 biens en portefeuille
Je souhaite être recontacté





