Maison à vendre à AVRILLE de 163m²199 900 €
Réf 1598412
Aperçu de cette maison à vendre de 4 pièces et 163 m²
Maison
163m²
4
1
1
1
175m²
3
Électrique individuel
1930
Le point fort de cette maison
Immeuble de Rapport - Division en 4 Parties - Centre Ville
Description de cette maison à vendre de 4 pièces et 163 m²
Immeuble de Rapport - Division en 3 Logements + 1 Local Commercial
Immeuble de Rapport à Diviser en 4 Parties !
Gros + : Toutes les demandes d'Urbanismes, Permis de construire et démolir, ont été faites et Accordées en Mairie !! (1an de demande d'économisé !! )
Projet accepté en Mairie :
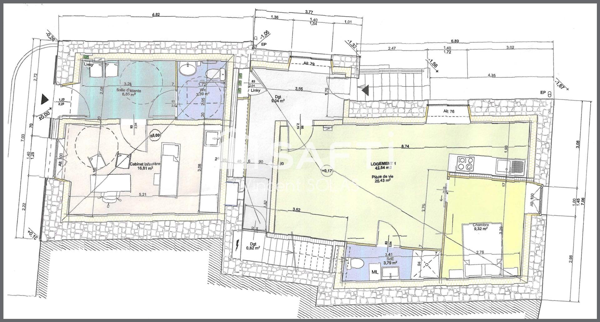
- 1 Local commercial de 27 m² au RDC pour profession libérale (cabinet infirmière ou autre) => A Rénover !!
- 1 Appartement T2 au RDC a été refait sur 42.54m² comprenant : 1 pièce de vie + kitchenette + une chambre de 9.32 m² + une salle d'eau avec WC de 3.79m² - Libre de toute occupation ayant été loué : 700 € (dont 150 € de charges).
- A L'étage les Permis accordés pour 2 logements supplémentaires :
- 1 Appartement T2 de 45 m² comprenant 1 pièce de vie + kitchenette + salle d'eau + wc + chambre => A Rénover
+
- 1 Appartement T2 de 32 m² comprenant 1 pièce de vie + kitchenette + salle d'eau + wc + Chambre => A Rénover
Un Sous sol d'environ 50m² pratique pour le passage des évacuations des eaux usées, électricité, stockage, etc ...
=> Un Permis de démolir une partie arrière accordé pour les créations des stationnements véhicules !
Cet Immeuble de Rapport est situé proche de toutes Commodités, commerces, supérette, artisans, école, pharmacie, médecin, garagiste, station service.
La plage la plus proche se situe a environ 6km situation idéale.
Les Plans ont été fait et créer ... il n' y a plus qu'a faire les travaux !!
Une visite s'impose !
Les informations sur les risques auxquels ce bien est exposé sont disponibles sur le site Géorisques : www.georisques.gouv.fr
Prix de vente honoraires d'agence inclus : 199 900 €
Prix de vente hors honoraires d'agence : 191 900 €
Honoraires charge acquéreur : 8 000 € soit 4,17 % TTC de la valeur du bien hors honoraires
Contactez votre conseiller SAFTI : Vincent SOLAS, Tél. : 06 60 90 62 71, E-mail : vincent.solas@safti.fr - EI - Agent commercial immatriculé au RSAC de La-Roche-Sur-Yon sous le numéro 792 144 073
Gros + : Toutes les demandes d'Urbanismes, Permis de construire et démolir, ont été faites et Accordées en Mairie !! (1an de demande d'économisé !! )
Projet accepté en Mairie :
- 1 Local commercial de 27 m² au RDC pour profession libérale (cabinet infirmière ou autre) => A Rénover !!
- 1 Appartement T2 au RDC a été refait sur 42.54m² comprenant : 1 pièce de vie + kitchenette + une chambre de 9.32 m² + une salle d'eau avec WC de 3.79m² - Libre de toute occupation ayant été loué : 700 € (dont 150 € de charges).
- A L'étage les Permis accordés pour 2 logements supplémentaires :
- 1 Appartement T2 de 45 m² comprenant 1 pièce de vie + kitchenette + salle d'eau + wc + chambre => A Rénover
+
- 1 Appartement T2 de 32 m² comprenant 1 pièce de vie + kitchenette + salle d'eau + wc + Chambre => A Rénover
Un Sous sol d'environ 50m² pratique pour le passage des évacuations des eaux usées, électricité, stockage, etc ...
=> Un Permis de démolir une partie arrière accordé pour les créations des stationnements véhicules !
Cet Immeuble de Rapport est situé proche de toutes Commodités, commerces, supérette, artisans, école, pharmacie, médecin, garagiste, station service.
La plage la plus proche se situe a environ 6km situation idéale.
Les Plans ont été fait et créer ... il n' y a plus qu'a faire les travaux !!
Une visite s'impose !
Les informations sur les risques auxquels ce bien est exposé sont disponibles sur le site Géorisques : www.georisques.gouv.fr
Prix de vente honoraires d'agence inclus : 199 900 €
Prix de vente hors honoraires d'agence : 191 900 €
Honoraires charge acquéreur : 8 000 € soit 4,17 % TTC de la valeur du bien hors honoraires
Contactez votre conseiller SAFTI : Vincent SOLAS, Tél. : 06 60 90 62 71, E-mail : vincent.solas@safti.fr - EI - Agent commercial immatriculé au RSAC de La-Roche-Sur-Yon sous le numéro 792 144 073
Informations additionnelles
Bilan énergétique
CLASSE ÉNERGIE ET CLASSE CLIMATm².anGi
Montant estimé des dépenses annuelles d'énergie pour un usage standard : entre 2800€ et 3840€ par an sur l'année 2021.
Ce bien vous est proposé par :

Vincent Solas
La Roche-Sur-Yon (85000)
36 biens en portefeuille
Je souhaite être recontacté
Un de vos proches a un projet immobilier ?
Achat ou vente, transmettez-moi l’info via l’appli SAFTI Connect et gagnez 875€ en moyenne.

















