Immeuble à vendre à NIORT de 567m²615 000 €
Réf 1632643
Aperçu de cet immeuble à vendre de 567 m²
Immeuble
567m²
1 050m²
9
Gaz individuel
1970
Le point fort de cet immeuble
Plain-pied intégral / PC accordé, purgé de tout recours / 9 lots / Rendement brut estimé entre 80 000 € et 85 000 € / an
Description de cet immeuble à vendre de 567 m²
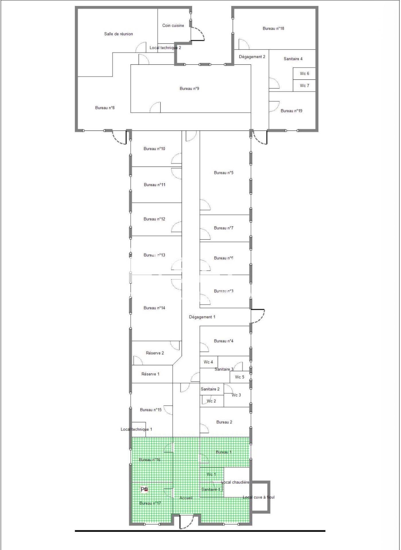
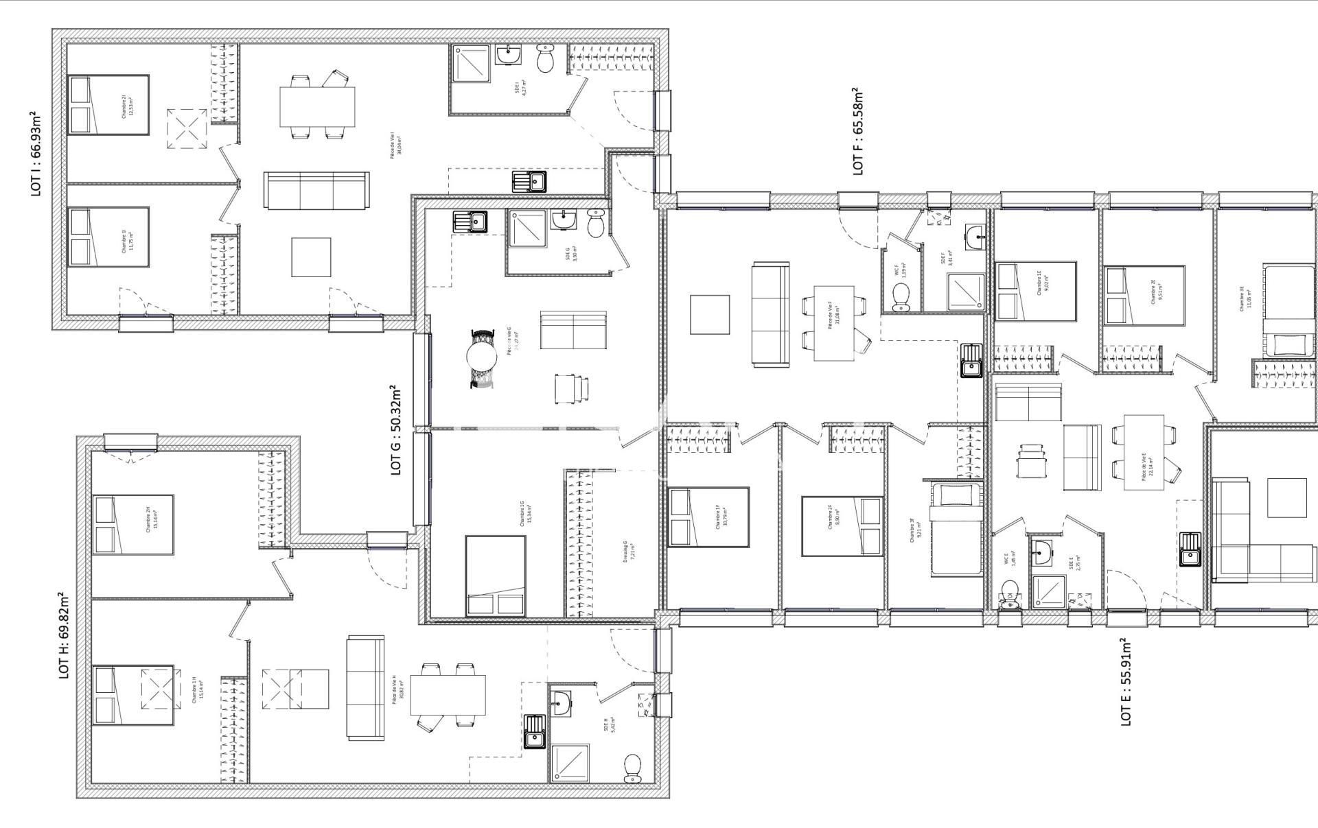
Immeuble de rapport : PC accordé, 9 lots.
NIORT (79) – Bâtiment de plain-pied 567 m² avec permis de construire accordé – Changement de destination en 9 logements
Opportunité rare sur Niort.
Disponible à la vente un bâtiment de plain-pied d'une surface totale de 567 m², actuellement à usage de bureaux, bénéficiant d'un permis de construire accordé en juin 2025 pour sa transformation en 9 logements locatifs.
Le bâtiment est situé à Niort (79), dans un secteur résidentiel desservi. Sa configuration de plain-pied et son double accès latéral en font un bien particulièrement adapté à une exploitation locative optimisée, notamment pour une clientèle PMR.
Chaque lot dispose d'une pièce de vie, d'une ou plusieurs chambres, et d'une salle d'eau. Les plans architecturaux sont disponibles sur demande.
Le potentiel de revenus bruts annuels est estimé entre 80 000 € et 85 000 €, soit un rendement brut particulièrement attractif.
La taxe foncière annuelle est de 5 000 €.
Dossier technique complet disponible sur demande.
Les informations sur les risques auxquels ce bien est exposé sont disponibles sur le site Géorisques : www.georisques.gouv.fr
Prix de vente : 615 000 €
Honoraires charge vendeur
Contactez votre conseiller SAFTI : Pacôme AUDEBRAND, Tél. : 0617756398, E-mail : pacome.audebrand@safti.fr - EI - Agent commercial immatriculé au RSAC de Niort sous le numéro 991039991
Opportunité rare sur Niort.
Disponible à la vente un bâtiment de plain-pied d'une surface totale de 567 m², actuellement à usage de bureaux, bénéficiant d'un permis de construire accordé en juin 2025 pour sa transformation en 9 logements locatifs.
Le bâtiment est situé à Niort (79), dans un secteur résidentiel desservi. Sa configuration de plain-pied et son double accès latéral en font un bien particulièrement adapté à une exploitation locative optimisée, notamment pour une clientèle PMR.
Chaque lot dispose d'une pièce de vie, d'une ou plusieurs chambres, et d'une salle d'eau. Les plans architecturaux sont disponibles sur demande.
Le potentiel de revenus bruts annuels est estimé entre 80 000 € et 85 000 €, soit un rendement brut particulièrement attractif.
La taxe foncière annuelle est de 5 000 €.
Dossier technique complet disponible sur demande.
Les informations sur les risques auxquels ce bien est exposé sont disponibles sur le site Géorisques : www.georisques.gouv.fr
Prix de vente : 615 000 €
Honoraires charge vendeur
Contactez votre conseiller SAFTI : Pacôme AUDEBRAND, Tél. : 0617756398, E-mail : pacome.audebrand@safti.fr - EI - Agent commercial immatriculé au RSAC de Niort sous le numéro 991039991
Informations additionnelles
Bilan énergétique
Non RenseignéCe bien vous est proposé par :

Pacôme Audebrand
Saint-Maxire (79410)
5 biens en portefeuille
Je souhaite être recontacté
Un de vos proches a un projet immobilier ?
Achat ou vente, transmettez-moi l’info via l’appli SAFTI Connect et gagnez 875€ en moyenne.

sur SAFTI Prestige
