Bureaux à vendre à DARDILLY de 124m²240 000 € HT
Réf 1601532
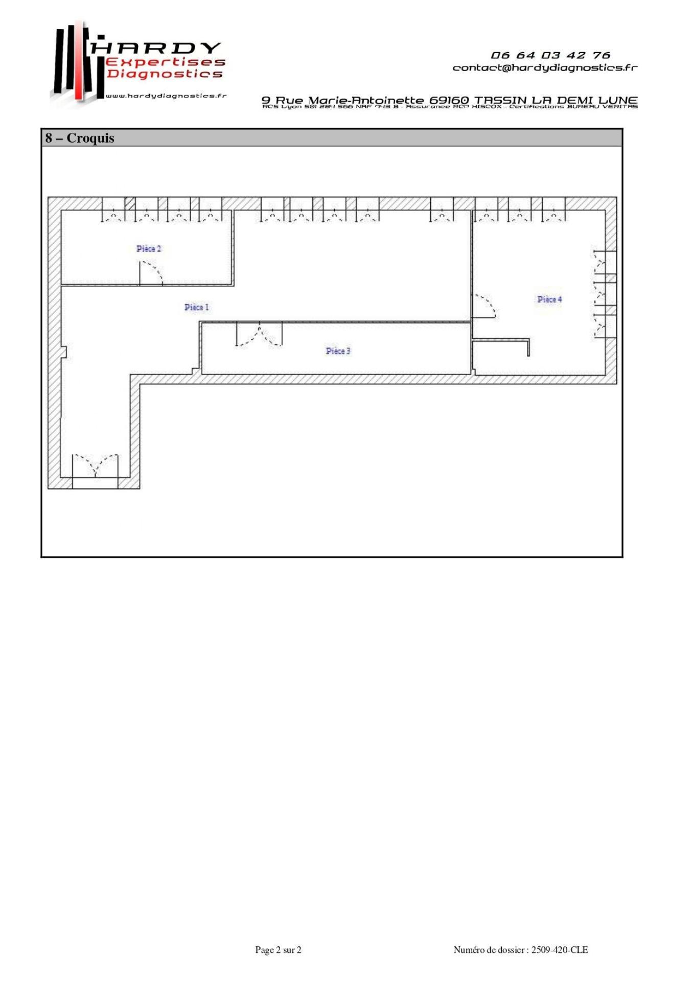
Aperçu de ce commerce à vendre de 5 pièces et 124 m²
Bureaux
124m²
RDC/4
5
5
Électrique individuel
1988
Le point fort de ce commerce
Accessibilité en TCL et M7
Description de ce commerce à vendre de 5 pièces et 124 m²
Plateau de bureau pour PME ou Praticiens médicaux
Dardilly, chemin du Jubin, a vendre chez SAFTI, un plateau de Bureaux, situé en RDC d'une surface privative de 118 m2, et ne nécessitant peu de travaux, hors aménagement spécifique à l'activité du potentiel acquéreur.
Le plateau de bureaux est vendu avec 5 emplacements de stationnements privatifs dits aériens.
Le bien comprend 6 lots, et il est situé dans une copropriété de 184 lots (les charges courantes annuelles moyennes de copropriété sont de 4222 € et le syndicat des copropriétaires ne fait pas l'objet d'une procédure citée à l'article L. 721-1 du code de la construction et de l'habitation).
Les informations sur les risques auxquels ce bien est exposé sont disponibles sur le site Géorisques : www.georisques.gouv.fr
Prix de vente honoraires d’agence inclus : 240 000 € HT + 2 400 € TVA, soit 242 400 € TTC
Prix de vente hors honoraires d’agence : 228 000 € HT + 0 € TVA, soit 228 000 € TTC
Honoraires d'agence : 12 000 € HT + 2 400 € TVA, soit 14 400 € TTC (6.32 % TTC du prix de vente hors honoraires d'agence)
Honoraires charge acquéreur
Contactez votre conseiller SAFTI : Salim BENNAKHLA, Tél. : 0666203008, E-mail : salim.bennakhla@safti.fr - EI - Agent commercial immatriculé au RSAC de LYON sous le numéro 803 500 875
Le plateau de bureaux est vendu avec 5 emplacements de stationnements privatifs dits aériens.
Le bien comprend 6 lots, et il est situé dans une copropriété de 184 lots (les charges courantes annuelles moyennes de copropriété sont de 4222 € et le syndicat des copropriétaires ne fait pas l'objet d'une procédure citée à l'article L. 721-1 du code de la construction et de l'habitation).
Les informations sur les risques auxquels ce bien est exposé sont disponibles sur le site Géorisques : www.georisques.gouv.fr
Prix de vente honoraires d’agence inclus : 240 000 € HT + 2 400 € TVA, soit 242 400 € TTC
Prix de vente hors honoraires d’agence : 228 000 € HT + 0 € TVA, soit 228 000 € TTC
Honoraires d'agence : 12 000 € HT + 2 400 € TVA, soit 14 400 € TTC (6.32 % TTC du prix de vente hors honoraires d'agence)
Honoraires charge acquéreur
Contactez votre conseiller SAFTI : Salim BENNAKHLA, Tél. : 0666203008, E-mail : salim.bennakhla@safti.fr - EI - Agent commercial immatriculé au RSAC de LYON sous le numéro 803 500 875
Informations additionnelles
Bilan énergétique
ViergeDiagnostic de Performance Energétique
ViergeGaz à effet de serre
Charges estimées : 4 222 € / an
Ce bien vous est proposé par :

Salim Bennakhla
Lyon 5e Arrondissement (69005)
33 biens en portefeuille
Je souhaite être recontacté


