Maison à vendre à SAINT-GRAVE de 190m²229 000 €
Réf 1609392
Aperçu de cette maison à vendre de 9 pièces et 190 m²
Maison
190m²
9
6
1
2
470m²
3
Fuel individuel
1945
Le point fort de cette maison
Grands espaces de vie, 6 chambres lumineuses et spacieuses, cave sur toute la surface, jardin arboré et grande dépendance
Description de cette maison à vendre de 9 pièces et 190 m²
Ensemble de 2 Maisons de bourg, entre Vannes et Redon
Située à Saint-Gravé (56220), à 20 minutes de Redon et à 30 minutes de Vannes et des plages du Morbihan, cette belle propriété en pierre offre un cadre de vie paisible en plein centre bourg.
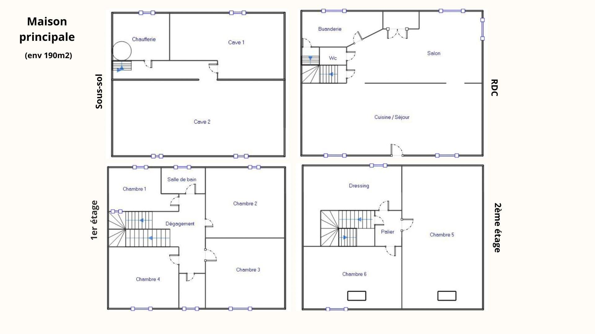
Sur un terrain clos et arboré de 470 m², la maison principale se déploie sur trois niveaux, pour une surface habitable de 190m2. Le RDC accueille une grande cuisine ouverte sur le jardin, ainsi qu’un grand séjour. Une salle d'eau et des WC séparés complètent ce niveau. À l’étage, quatre belles chambres offrent confort et espace, accompagnées d’une salle de bains et de WC indépendants. Au dernier niveau, deux grands volumes supplémentaires, dont une pièce avec mezzanine et de magnifiques poutres apparentes vous offrent la possibilité de donner libre cours à vos envies : chambres supplémentaires, atelier d’artiste, espace de télétravail, salle de jeux... La maison dispose également d’un sous-sol complet comprenant cave, chaufferie et espaces de rangement.
Enfin, atout rare, la propriété comprend une seconde maison indépendante de 70m2, à rénover, offrant cuisine, salon avec cheminée, deux chambres, salle de bains/WC et grenier aménageable. Parfaite pour un projet locatif, un logement familial indépendant, un atelier ou une activité libérale.
Un bien idéal pour une grande famille, des artistes en quête d’espace ou toute personne souhaitant conjuguer habitation et projet professionnel dans un environnement calme, tout en restant proche des commodités et des axes ferroviaires (ligne Rennes–Quimper à 8 km).
Les informations sur les risques auxquels ce bien est exposé sont disponibles sur le site Géorisques : www.georisques.gouv.fr
Prix de vente : 229 000 €
Honoraires charge vendeur
Contactez votre conseiller SAFTI : Virginie GUIBBAUD, Tél. : 0647925265, E-mail : virginie.guibbaud@safti.fr - EI - Agent commercial immatriculé au RSAC de Rennes sous le numéro 890797699
Sur un terrain clos et arboré de 470 m², la maison principale se déploie sur trois niveaux, pour une surface habitable de 190m2. Le RDC accueille une grande cuisine ouverte sur le jardin, ainsi qu’un grand séjour. Une salle d'eau et des WC séparés complètent ce niveau. À l’étage, quatre belles chambres offrent confort et espace, accompagnées d’une salle de bains et de WC indépendants. Au dernier niveau, deux grands volumes supplémentaires, dont une pièce avec mezzanine et de magnifiques poutres apparentes vous offrent la possibilité de donner libre cours à vos envies : chambres supplémentaires, atelier d’artiste, espace de télétravail, salle de jeux... La maison dispose également d’un sous-sol complet comprenant cave, chaufferie et espaces de rangement.
Enfin, atout rare, la propriété comprend une seconde maison indépendante de 70m2, à rénover, offrant cuisine, salon avec cheminée, deux chambres, salle de bains/WC et grenier aménageable. Parfaite pour un projet locatif, un logement familial indépendant, un atelier ou une activité libérale.
Un bien idéal pour une grande famille, des artistes en quête d’espace ou toute personne souhaitant conjuguer habitation et projet professionnel dans un environnement calme, tout en restant proche des commodités et des axes ferroviaires (ligne Rennes–Quimper à 8 km).
Les informations sur les risques auxquels ce bien est exposé sont disponibles sur le site Géorisques : www.georisques.gouv.fr
Prix de vente : 229 000 €
Honoraires charge vendeur
Contactez votre conseiller SAFTI : Virginie GUIBBAUD, Tél. : 0647925265, E-mail : virginie.guibbaud@safti.fr - EI - Agent commercial immatriculé au RSAC de Rennes sous le numéro 890797699
Informations additionnelles
Bilan énergétique
CLASSE ÉNERGIE ET CLASSE CLIMATm².anFi
Montant estimé des dépenses annuelles d'énergie pour un usage standard : entre 3390€ et 4630€ par an sur l'année 2021.
Ce bien vous est proposé par :

Virginie Guibbaud
Langon (35660)
6 biens en portefeuille
Je souhaite être recontacté
Un de vos proches a un projet immobilier ?
Achat ou vente, transmettez-moi l’info via l’appli SAFTI Connect et gagnez 875€ en moyenne.


















