Maison à vendre à BRIGNAIS de 105m²499 000 €
Réf 1582216
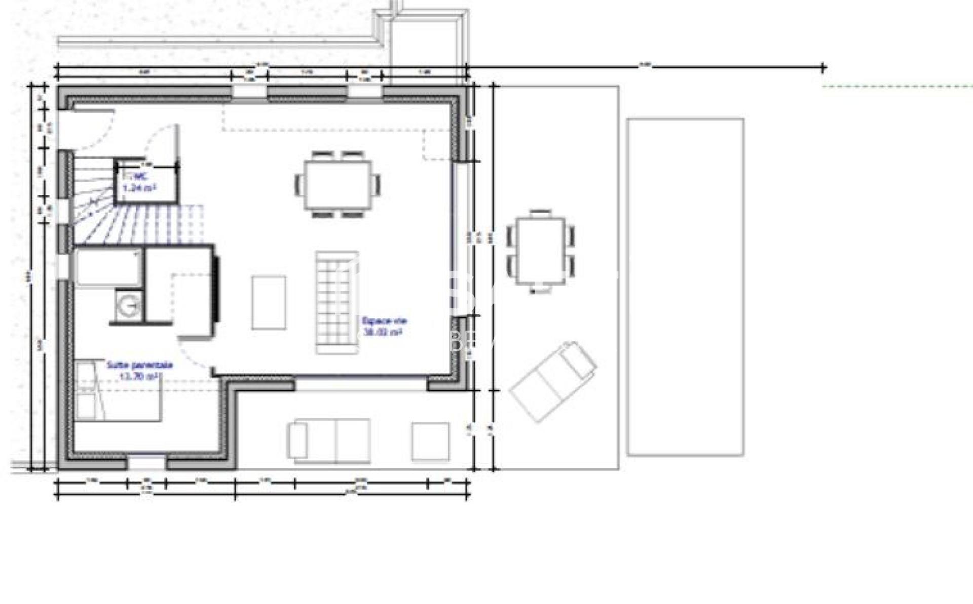
Aperçu de cette maison à vendre de 5 pièces et 105 m²
Maison
105m²
5
4
2
2
700m²
2
2025
Le point fort de cette maison
LUMINEUSE ET SANS VIS A VIS
Description de cette maison à vendre de 5 pièces et 105 m²
MAISON NEUVE 4 CHAMBRES DONT 1 SUITE PARENTALE
En exclusivité sur la charmante commune de Brignais, au calme et à proximité immédiate des transports, écoles, et commerces, je vous invite à découvrir cette magnifique maison moderne construite en 2025 sans aucun vis à vis.
Son terrain de 700m² plat et clôturé vous offre la possibilité de créer une piscine et son pool house : Permis de construire accepté !
Hors d'eau et hors d'air, vous pourrez choisir à votre guise vos matériaux de finition (sol, cuisine, SDB...) pour terminer ce petit bijou tout juste sorti de terre.
De construction traditionnelle et hautement qualitative vous bénéficierez en plus d'une excellente isolation (sol et plancher), d'huisseries haut de gamme avec volets roulants électriques intégrés, d'une toiture 4 pans avec les bandeaux PVC et les chéneaux en aluminium anti-gel etc .....
Au RDC il est prévu 1 grande pièce de vie triple exposition avec cuisine ouverte, 1 suite parentale avec SDE et 1 wc séparé.
A l'étage 3 chambres, 1 SDB et 1 wc séparé.
Très rare opportunité qui vous laisse la possibilité d'acheter ce bien unique avec des frais de mutation moins élevés que s'il était entièrement terminé et qui vous laisse la chance de personnaliser à votre gout la maison de vos rêves !
Les informations sur les risques auxquels ce bien est exposé sont disponibles sur le site Géorisques : www.georisques.gouv.fr
Prix de vente : 499 000 €
Honoraires charge vendeur
Contactez votre conseiller SAFTI : Sophie BEVILACQUA, Tél. : 0651070797, E-mail : sophie.bevilacqua@safti.fr - EI - Agent commercial immatriculé au RSAC de LYON sous le numéro 752 761 924
Son terrain de 700m² plat et clôturé vous offre la possibilité de créer une piscine et son pool house : Permis de construire accepté !
Hors d'eau et hors d'air, vous pourrez choisir à votre guise vos matériaux de finition (sol, cuisine, SDB...) pour terminer ce petit bijou tout juste sorti de terre.
De construction traditionnelle et hautement qualitative vous bénéficierez en plus d'une excellente isolation (sol et plancher), d'huisseries haut de gamme avec volets roulants électriques intégrés, d'une toiture 4 pans avec les bandeaux PVC et les chéneaux en aluminium anti-gel etc .....
Au RDC il est prévu 1 grande pièce de vie triple exposition avec cuisine ouverte, 1 suite parentale avec SDE et 1 wc séparé.
A l'étage 3 chambres, 1 SDB et 1 wc séparé.
Très rare opportunité qui vous laisse la possibilité d'acheter ce bien unique avec des frais de mutation moins élevés que s'il était entièrement terminé et qui vous laisse la chance de personnaliser à votre gout la maison de vos rêves !
Les informations sur les risques auxquels ce bien est exposé sont disponibles sur le site Géorisques : www.georisques.gouv.fr
Prix de vente : 499 000 €
Honoraires charge vendeur
Contactez votre conseiller SAFTI : Sophie BEVILACQUA, Tél. : 0651070797, E-mail : sophie.bevilacqua@safti.fr - EI - Agent commercial immatriculé au RSAC de LYON sous le numéro 752 761 924
Informations additionnelles
Bilan énergétique
Non obligatoireDiagnostic de Performance Energétique
Non obligatoireGaz à effet de serre
Ce bien vous est proposé par :

Sophie Bevilacqua
Sathonay-Village (69580)
30 biens en portefeuille
Je souhaite être recontacté













