Local Commercial à vendre à MAIZIERES-LES-METZ de 263m²239 000 € HT
Réf 1604933
Aperçu de ce bien à vendre de 6 pièces et 263 m²
Local Commercial
263m²
6
1
Individuel
1927
Le point fort de ce bien
Emplacement passant au Centre ville, grands volumes, grande vitrine
Description de ce bien à vendre de 6 pièces et 263 m²
Murs commerciaux avec avec fort potentiel d’exploitation et visibilité optimale !
Idéalement situé au cœur d’un secteur dynamique, ce local commercial bénéficie d’un emplacement stratégique, à proximité immédiate des commerces, des axes de circulation et des transports. Une adresse reconnue, offrant un flux régulier et une excellente accessibilité pour la clientèle comme pour les professionnels.
Implanté en rez-de-chaussée, le bien profite d’une visibilité commerciale optimale grâce à sa large façade vitrée, véritable atout pour valoriser votre enseigne et renforcer votre présence. Cet emplacement constitue un cadre idéal pour développer ou implanter durablement une activité.
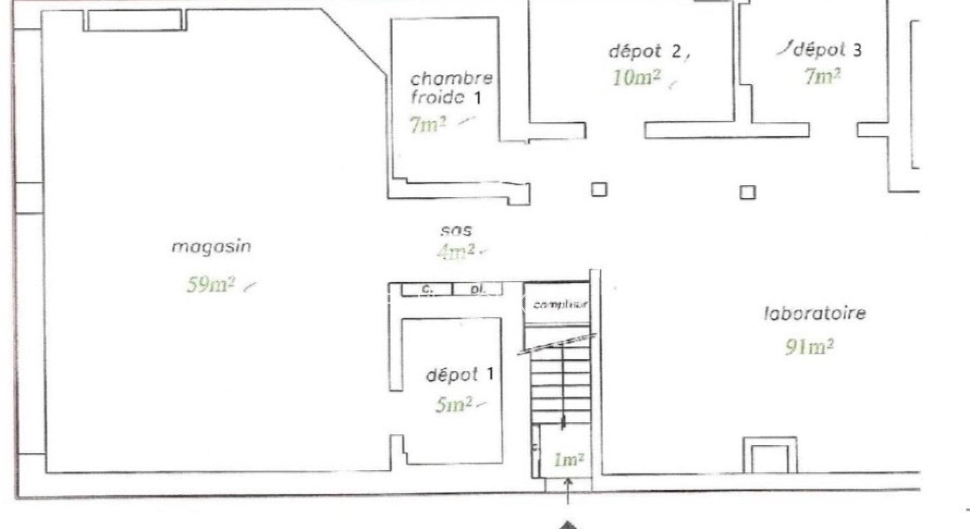
D’une surface totale d’environ 263 m², ce local se compose de plusieurs espaces fonctionnels permettant une exploitation immédiate ou une reconfiguration selon votre projet :
Un espace de vente / magasin de 59 m²
Un laboratoire de 91 m²
Deux dépôts de 7 m² chacun
Deux chambres froides de 18 m² et 11 m²
Un débarras de 6 m²
Un garage d’environ 26 m²
L’agencement rationnel des volumes offre de nombreuses possibilités : activité commerciale, artisanale, alimentaire, profession libérale, transformation en bureaux ou projet d’investissement patrimonial avec valorisation des surfaces.
Un bien rare sur le secteur, alliant visibilité, surface et modularité, parfaitement adapté à un professionnel souhaitant conjuguer implantation stratégique et outil de travail performant.
Pour toute information complémentaire ou organiser une visite, contactez-moi.
Les informations sur les risques auxquels ce bien est exposé sont disponibles sur le site Géorisques : www.georisques.gouv.fr
Prix de vente honoraires d’agence inclus : 239 000 € HT + 3 000 € TVA, soit 242 000 € TTC
Prix de vente hors honoraires d’agence : 224 000 € HT + 0 € TVA, soit 224 000 € TTC
Honoraires d'agence : 15 000 € HT + 3 000 € TVA, soit 18 000 € TTC (8.04 % TTC du prix de vente hors honoraires d'agence)
Honoraires charge acquéreur
Contactez votre conseiller SAFTI : Fatiha OUKADIR, Tél. : 06 95 31 41 04, E-mail : fatiha.oukadir@safti.fr - EI - Agent commercial immatriculé au RSAC de THIONVILLE sous le numéro 903 002 707
Implanté en rez-de-chaussée, le bien profite d’une visibilité commerciale optimale grâce à sa large façade vitrée, véritable atout pour valoriser votre enseigne et renforcer votre présence. Cet emplacement constitue un cadre idéal pour développer ou implanter durablement une activité.
D’une surface totale d’environ 263 m², ce local se compose de plusieurs espaces fonctionnels permettant une exploitation immédiate ou une reconfiguration selon votre projet :
Un espace de vente / magasin de 59 m²
Un laboratoire de 91 m²
Deux dépôts de 7 m² chacun
Deux chambres froides de 18 m² et 11 m²
Un débarras de 6 m²
Un garage d’environ 26 m²
L’agencement rationnel des volumes offre de nombreuses possibilités : activité commerciale, artisanale, alimentaire, profession libérale, transformation en bureaux ou projet d’investissement patrimonial avec valorisation des surfaces.
Un bien rare sur le secteur, alliant visibilité, surface et modularité, parfaitement adapté à un professionnel souhaitant conjuguer implantation stratégique et outil de travail performant.
Pour toute information complémentaire ou organiser une visite, contactez-moi.
Les informations sur les risques auxquels ce bien est exposé sont disponibles sur le site Géorisques : www.georisques.gouv.fr
Prix de vente honoraires d’agence inclus : 239 000 € HT + 3 000 € TVA, soit 242 000 € TTC
Prix de vente hors honoraires d’agence : 224 000 € HT + 0 € TVA, soit 224 000 € TTC
Honoraires d'agence : 15 000 € HT + 3 000 € TVA, soit 18 000 € TTC (8.04 % TTC du prix de vente hors honoraires d'agence)
Honoraires charge acquéreur
Contactez votre conseiller SAFTI : Fatiha OUKADIR, Tél. : 06 95 31 41 04, E-mail : fatiha.oukadir@safti.fr - EI - Agent commercial immatriculé au RSAC de THIONVILLE sous le numéro 903 002 707
Informations additionnelles
Bilan énergétique
ViergeDiagnostic de Performance Energétique
ViergeGaz à effet de serre
Ce bien vous est proposé par :

Fatiha Oukadir
Gandrange (57175)
36 biens en portefeuille
Je souhaite être recontacté
Un de vos proches a un projet immobilier ?
Achat ou vente, transmettez-moi l’info via l’appli SAFTI Connect et gagnez 875€ en moyenne.
