Appartement à vendre à NANTES de 42m²152 500 €
Réf 1597732
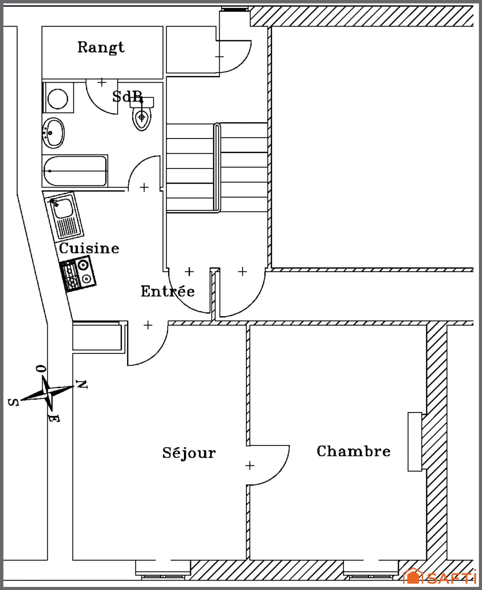
Aperçu de cet appartement à vendre de 2 pièces et 42 m²
Appartement
42m²
3/3
2
1
Électrique individuel
1850
Description de cet appartement à vendre de 2 pièces et 42 m²
T2 meublé de 42m2 loué jusqu'au 30/07/2026
Olivette - Venez découvrir cet appartement bénéficiant d'un emplacement prisé offrant une qualité de vie agréable. Idéalement situé, il offre une proximité direct avec l'hyper centre, les commodités essentielles telles que les transports en commun, les commerces, ainsi que les lieux culturels et de loisirs. Situé au second étage, ce T2 de 42m² est un harmonieux mélange de confort et de praticité. Il est composé d'un salon orienté ouest, d'une cuisine, une SDE avec WC et une chambre. Il propose un espace de vie fonctionnel. Loué 600 € hors charges et 685 € toutes charges comprises jusqu'au 30/07/2026, ce bien offre un rendement locatif intéressant de 4,72 % pour les investisseurs cherchant une opportunité solide. Coquet et lumineux, cet appartement est parfait pour un investissement locatif pérenne dans un quartier prisé de Nantes.
Le bien comprend 1 lot, et il est situé dans une copropriété de 11 lots (les charges courantes annuelles moyennes de copropriété sont de 1020 € et le syndicat des copropriétaires ne fait pas l'objet d'une procédure citée à l'article L. 721-1 du code de la construction et de l'habitation).
Les informations sur les risques auxquels ce bien est exposé sont disponibles sur le site Géorisques : www.georisques.gouv.fr
Prix de vente : 152 500 €
Honoraires charge vendeur
Contactez votre conseiller SAFTI : Nicolas RETIERE, Tél. : 0698006363, E-mail : nicolas.retiere@safti.fr - EI - Agent commercial immatriculé au RSAC de NANTES sous le numéro 823209176
Le bien comprend 1 lot, et il est situé dans une copropriété de 11 lots (les charges courantes annuelles moyennes de copropriété sont de 1020 € et le syndicat des copropriétaires ne fait pas l'objet d'une procédure citée à l'article L. 721-1 du code de la construction et de l'habitation).
Les informations sur les risques auxquels ce bien est exposé sont disponibles sur le site Géorisques : www.georisques.gouv.fr
Prix de vente : 152 500 €
Honoraires charge vendeur
Contactez votre conseiller SAFTI : Nicolas RETIERE, Tél. : 0698006363, E-mail : nicolas.retiere@safti.fr - EI - Agent commercial immatriculé au RSAC de NANTES sous le numéro 823209176
Informations additionnelles
Bilan énergétique
CLASSE ÉNERGIE ET CLASSE CLIMATm².anCi
Montant estimé des dépenses annuelles d'énergie pour un usage standard : entre 630€ et 910€ par an sur l'année 2021.
Charges estimées : 1 020 € / an
Ce bien vous est proposé par :

Nicolas Retiere
Nantes (44000)
46 biens en portefeuille
Je souhaite être recontacté


















